При побудові аматорських аеросаней, глісерів, апаратів на повітряній подушці найбільші труднощі викликає підбір двигуна. Не секрет, що серійні двигуни часто не задовольняють самодіяльних конструкторів за багатьма параметрами, зокрема за питомою потужністю.
Найбільш радикальний шлях розв’язання проблеми – виготовлення саморобних двигунів з використанням деталей від серійних мотоциклетних моторів. Читачам «М-К» відомі такі мотори: ББ-1 конструкції Г. Белошапкіна і Л. Буянова, двигун Л. Комарова і В. Федорова, АГ-1 конструкції А. Геращенка.
Тут ми розповімо про принципи конструювання і технологію виготовлення двоциліндрових опозитних моторів також з максимальним використанням стандартних деталей. Прикладом слугуватиме двигун, побудований і випробуваний А. Антіпіним із селища Приютово (Башкирія).
Слід зауважити, що в схему двигуна А. Антіпіна під час його опрацювання в ОКБ «М-К» було внесено низку модернізацій. Їхня мета – підвищення надійності, спрощення механічної обробки деталей і виключення деяких технологічних операцій. Крім того, конструктивні зміни дають змогу істотно підвищити точність виготовлення основних деталей, що збільшує моторесурс двигуна.

1 — корпус бензонасоса, 2 — важіль бензонасоса, 3 — шток привода бензонасоса, 4 — втулка штока, 5 — проставка, 6 — кришка магдіно, 7 — ексцентрик бензонасоса, 8 — корпус якоря магдіно, 9, 33 — магніти якоря, 10, 32 — обмотки якоря, 11 — кришка переднього корінного підшипника, 12, 24 — сальники, 13 — передня половина картера, 14, 23 — корінні підшипники № 208, 15 — передня щока колінчастого вала, 16 — передня корінна цапфа колінчастого вала, 17 — середня щока колінчастого вала, 18, 30 — шатуни, 19, 29 — ролики нижніх шатунних підшипників, 20, 31 — отвори під гільзи циліндрів, 21 — задня щока колінчастого вала, 22, 28 — пальці нижніх шатунних підшипників, 25 — кришка заднього корінного підшипника, 26 — задня корінна цапфа колінчастого вала, 27 — задня половина картера, 34 — гайка кріплення ексцентрика бензонасоса.
Безперечно, що двоциліндровий двигун з опозитним розташуванням циліндрів має низку переваг перед рядними «спарками» з двох одноциліндрових і тим більше одноциліндровими моторами. Він значно краще збалансований, оскільки зворотно-поступальний рух двох поршнів зустрічний, а отже, моменти сил інерції взаємно врівноважені. До того ж підвищується надійність роботи і полегшується запуск двигуна. Незначні несправності в одному з циліндрів не виводять двигун із ладу і, принаймні, завжди є можливість «дотягнути» до місця ремонту. Додайте до цього меншу масу і габарити, простоту системи запалювання, а також добрі умови обдуву обох циліндрів – і ви зробите висновок: треба братися за «опозит»!
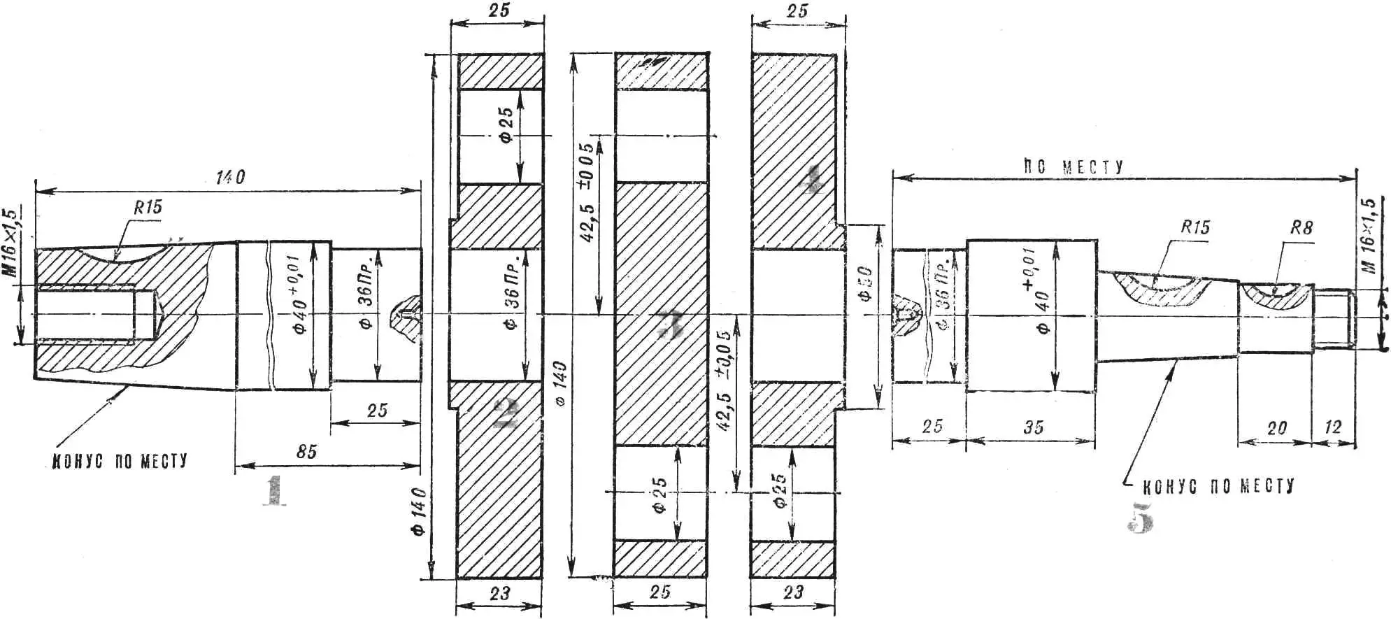
Конструкція запропонованого двигуна (рис. 1, 2) проста. Він може бути зібраний на основі деталей від моторів мотоциклів ІЖ-П-2, ІЖ-П-3 або ІЖ-56. Для такого двигуна необхідно самостійно виготовити лише колінчастий вал і картер.

1 — задня цапфа, 2, 4 — зовнішні щоки, 3 — середня щока, 5 — передня цапфа.
Колінчастий вал (рис. 3) роблять складеним. Корінні цапфи й нижні шатунні пальці встановлюються на нього під час складання. Для всіх деталей рекомендуються сталі 18ХМЮА або 40Х.
Заготовки корінних цапф із центровими отворами виточуються на токарному верстаті та мають припуск на подальшу обробку по 1,0 мм на бік (за винятком посадкових місць, призначених для запресування в щоки колінчастого вала: їх розточують відразу до номінального розміру). Три диски – заготовки щік колінчастого вала – мають припуск по 0,5 мм на бік. Потім їх шліфують на плоскошліфувальному верстаті й розмічають отвори під корінні цапфи та пальці нижніх головок шатунів.
Самі отвори свердлять і розточують до номінальних розмірів на планшайбі або в чотирьохкулачковому патроні токарного верстата. При цьому слід урахувати, що деталі, які сполучаються з цими отворами, запресовуються в них, тому розміри отворів мають відповідати пресовій посадці.
Порядок складання колінчастого вала такий. Спочатку за допомогою гвинтового преса в крайні щоки вала саджають корінні цапфи. Далі половину колінчастого вала встановлюють у центри токарного верстата для обробки щік, конусів і посадкових місць на цапфах до номінальних розмірів. Після цього в крайні щоки запресовують пальці нижніх головок шатунів, збирають нижні шатунні підшипники і в середній диск маховика запресовують пальці нижніх головок шатунів. Щоб отвори в щоках маховика не розбивалися, фаски на них не знімають, а для забезпечення заходу в них пальців кінці останніх заокруглюють.
Зібраний колінчастий вал встановлюють у центри токарного верстата (шатуни при цьому фіксуються) для обробки середнього диска маховика до номінальних розмірів. Потім на конусах фрезерують шпонкові канавки, а на кінцях хвостовиків вала нарізають різьбу.
Перед установленням шатунів і збиранням підшипників усі деталі (пальці нижніх головок шатунів, підшипники) мають бути ретельно підібрані за масою. Різниця у вазі між комплектами лівого і правого циліндрів не повинна перевищувати 2–3 г, інакше двигун працюватиме з дисбалансом і вібрацією.
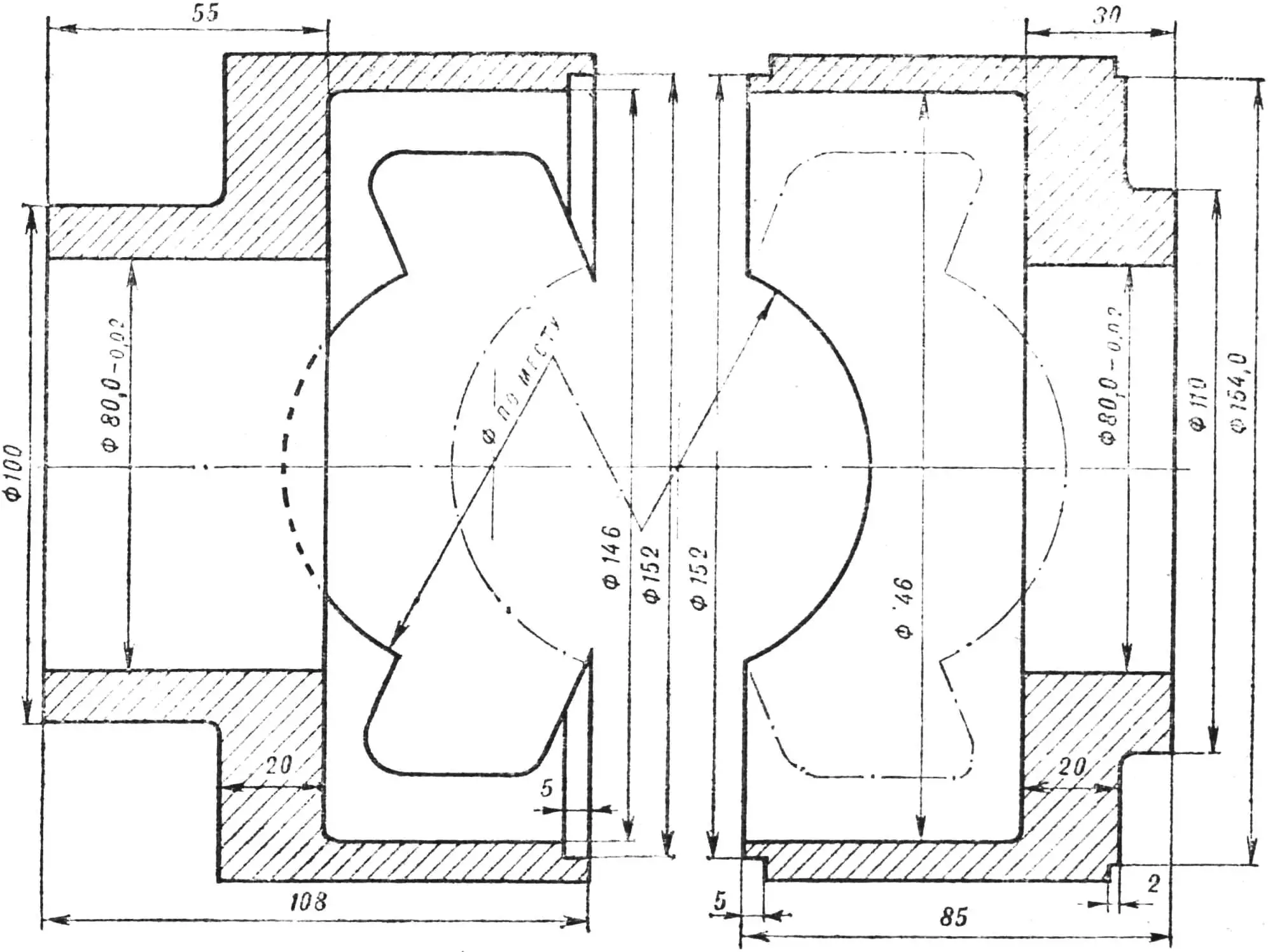
Картер (рис. 4, 5) являє собою механічно оброблену відливку з алюмінієвого сплаву АК-4-1. Матеріалом для відливки можуть слугувати старі автомобільні поршні, які переплавляють.

Обробку половин картера ведуть так. На токарному верстаті з одного установу розточують внутрішні діаметри й посадкові місця підшипників (рис. 5). Потім деталі збирають і свердлять отвори під стяжні шпильки та втулки. Після запресування втулок і стягування половин картера шпильками фрезерують зовнішні поверхні картера.

Потім картер установлюють у чотирьохкулачковий патрон токарного верстата для розточування посадкового місця кришки магдіно, центрують по отворах підшипників і розмічають, а потім обробляють на токарному та фрезерному верстатах отвори під гільзи циліндрів, шпильки й продувальні вікна.
Не слід дивуватися тому, що на кресленнях двигуна немає багатьох розмірів: більшість із них залежить від уживаних готових деталей.
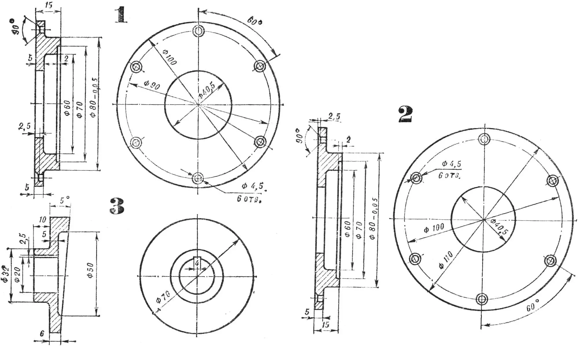
На рисунку 6 наведено креслення кришок підшипників і ексцентрика бензонасоса (від двигуна автомобіля «Запорожець» або човнового мотора). Застосування останнього дасть змогу позбутися ексцентрика привода. До того ж кришку магнето в цьому разі можна буде виготовити з будь-якого підхожого матеріалу (наприклад, зі склопластику).

1 — кришка заднього корінного підшипника, 2 — кришка переднього корінного підшипника, 3 — ексцентрик привода бензонасоса.
Як відомо, бензонасос човнового мотора працює від розрідження в картері, тож для його привода досить вварити в картер штуцер і з’єднати його з насосом гнучким шлангом.
Систему запалювання найкраще використовувати безконтактну, транзисторну, від моторолера «Вятка-Електрон». Ця схема добре зарекомендувала себе в експлуатації, вона стабільна в роботі, має надійне й потужне іскроутворення. Потреби в розподільнику на такому двигуні немає, оскільки поршні в ньому рухаються зустрічно і спалах у циліндрах відбувається одночасно.
Потужність опозитного мотора близько 28 к. с., але її можна збільшити. Відпрацьовані методики форсування одноциліндрових двигунів мотоциклів класу 350 см³ можна знайти в спортивній літературі з підготовки мотоциклів до змагань, але, як нам здається, має сенс коротко торкнутися їх і тут.
На поршнях необхідно зняти лиски (рис. 7). Форму камери згоряння слід змінити на зміщену напівсферичну з витискувачем (рис. 8) – це поліпшить умови продувки, очищення циліндрів від відпрацьованих газів і забезпечить більш рівномірне горіння робочої суміші. Існує два способи реконструкції камер згоряння: виготовити головки циліндрів заново або заварити старі камери алюмінієвим сплавом за допомогою аргонодугового пальника з подальшою проточкою камери на токарному верстаті відповідно до креслення. У впускних вікнах циліндрів видаляються перегородки та збільшуються їхні перерізи, як це показано на рисунку 9, нижня частина при цьому заокруглюється.



Впускні патрубки слід зробити нові, настроєні (рис. 10) – вони збільшать коефіцієнт наповнення за рахунок підбору оптимальної довжини. Тривалість фази випуску необхідно збільшити до 144°, для цього випускні вікна роблять вищими на 1,5 мм.

Перелічені операції зазвичай підвищують потужність серійного двигуна ІЖ-П-2 з 14,8 к. с. до 18,4 к. с., отже, потужність двоциліндрового опозитного мотора внаслідок його форсування зросте орієнтовно до 36 к. с. за незмінного ступеня стискання (6,5).
Найбільш придатними для цього мотора є карбюратори типу К-23Б або їм аналогічні з діаметром дифузора 27,5 мм.
Паливна суміш має складатися з бензину з октановим числом не нижче 80 (наприклад, АІ-93) і авіаційного масла МС-20 або МС-22, змішаних у звичайній пропорції (1:25 за об’ємом).
Слід пам’ятати, що моторесурс форсованого двигуна неминуче скорочується порівняно з прототипом, оскільки йому доводиться працювати в жорсткішому тепловому режимі з підвищеними навантаженнями.
Опозитний двоциліндровий двигун можна зробити й на базі інших моторів від мотоциклів М-106, «Восход», «Ява-350», відповідно змінивши розміри картера, колінчастого вала, підшипників тощо.
Кілька рекомендацій тим, хто бажає використовувати опозитний двигун для роботи в парі з повітряним гвинтом. Завжди слід пам’ятати, що максимальну потужність можна зняти тільки на номінальних обертах колінчастого вала (у нашому випадку 5000–5500 об/хв). Тому, якщо гвинт виявиться надто «важким» в аеродинамічному відношенні, двигун не вийде на режим максимальної потужності.
Крутний момент на гвинт рекомендується передавати через знижувальний редуктор із передатним числом 1,2–1,5. Це зменшить оберти повітряного гвинта до 2500–3000 об/хв, причому лінійна швидкість кінців лопатей гвинта Ø 2000 мм не перевищуватиме критичної 300 м/с. За таких умов гвинт працює з максимальним коефіцієнтом корисної дії за мінімального ковзання.
Використання редуктора також дає змогу позбутися небажаних осьових навантажень на колінчастий вал двигуна. Слід ураховувати, що під час роботи двигуна в парі з гвинтом без редуктора на корінну цапфу колінчастого вала необхідно встановити радіально-упорний підшипник: штатний радіальний підшипник швидко зношується й виходить із ладу.
«Моделист-конструктор» № 6’78, Ф. КІЗЕЛОВ
Трудно нині уявити міське, та й сільське життя без водопроводу. Що ж, якщо централізованого водопостачання немає, а колодязь поруч, найпростіше рішення — використовувати для підйому води електронасос. Однак це ще півсправи. Система водопостачання будинку повинна включати в себе і накопичувальну ємність, і елементи автоматичного управління насосом, і витратну мережу. Тому-то конструкторські рішення тут можуть бути найрізноманітнішими. Про деякі з них сьогодні розповідають наші читачі.
ВОДОНАПІРНА… ВАННА
Встановлення традиційної схеми з верхньою напірною ємністю (див. рис.) найзручніше розмістити на горищі дачного будиночка. Підберіть великий — літрів на 200 — резервуар, краще з нержавіючої сталі або дюралюмінію. Звичайну бочку для запобігання корозії необхідно ретельно покрити зсередини водостійкою фарбою. Я ж як водонапірний бак використав емальовану ванну. Хоча вона й важкувата, зате має солідний об’єм, не іржавіє, а її вихідне та переливне отвори зручні для під’єднання до системи.
Схема обладнання заміського будинку автономним водопроводом:
1 — водозабірник з фільтром, 2 — електронасос, 3 — колодязь, 4 — подаюча труба, 5 — газовий балон, 6 — зворотна труба системи водяного опалення, 7 — радіатор, 8 — газова водогрійка, 9 — розширювальний бачок, 10 — підживлююча труба, 11 — газова труба, 12 — блок управління насосом, 13 — ящик, 14 — напірна ємність (ванна), 15 — поплавок, 16 — важіль, 17 — теплоізоляційний матеріал, 18 — верхня кришка, 19 — відділення елементів управління, 20 — керуюча тяга з прапорцем, 21 — датчик верхнього рівня, 22 — вісь коливання важеля, 23 — датчик нижнього рівня, 24 — переливна труба, 25 — електромагнітний клапан, 26 — газова колонка, 27 — до споживачів холодної води, 28 — до споживачів гарячої води, 29 — каналізаційна труба, 30 — зливний колодязь.
Щоб експлуатувати домашній водопровід протягом усього року, ємність доведеться утеплити. Укладіть її в дошковий ящик і засипте в зазори між його стінками та ванною теплоізолятор — тирсу, шлак, керамзит. Зверху ванну треба закрити дошковою кришкою, а на ній встановити короб для елементів автоматичного управління — датчиків рівня.
Для автоматичного підтримання в ємності постійного рівня води оснастіть ванну регулюючим поплавковим пристроєм. Його конструкція може бути найрізноманітнішою і залежить в основному від застосовуваних перемикачів. Безконтактні вважаються найнадійнішими, тому я використав два перемикачі типу БВК. Важіль з поплавком на нижньому кінці закріплений шарнірно в кронштейнах кришки і при зміні рівня в баку переміщує верхнім плечем керуючі тяги з алюмінієвими прапорцями — наклеєними відрізками фольги. Розміри важелів та розташування датчиків обрані таким чином, щоб вони спрацьовували при мінімальному та максимальному рівні води в резервуарі.
Заміський будинок з таким водопроводом варто доповнити і системою каналізації. Для цього в дворі в 10 — 15 м від будинку викопайте яму глибиною 1,5—2 м і забетонуйте або обкладіть цеглою її стінки. Ще простіше для цієї мети використати відрізок сталевої або бетонної труби Ø 700— 1000 мм. Каналізаційні труби для зливу використаної води повинні мати Ø 100—150 мм. В ґрунт їх слід укласти на глибині не менше 600—700 мм з невеликим ухилом у бік збірного колодязя.
Якщо ж у вашому селищі налагоджено обмін газових балонів або є централізоване газопостачання, ваш водопровід забезпечить будинок усіма зручностями міської квартири. За допомогою газових водогрійок типу АГВ-80, АГВ-120 — водяним опаленням, а з газовою колонкою — і гарячою водою для господарських потреб. Єдине доповнення в системі водопостачання в цьому випадку — встановлення електромагнітного клапана, що перекриває витратну трубу з напірного бака. Він необхідний для того, щоб вода до колонки надходила безпосередньо від насоса. При цьому її напір вищий, ніж при подачі з напірної ємності, і клапан газового регулятора буде надійно працювати.
Н. ХОРЄВ, ст. Доскіно, Горьковська обл.
ПІД ТИСКОМ ПОВІТРЯ
Встановлення водонапірного бака на горищі, мабуть, найпростіше рішення, але мені воно здалося недостатньо досконалим. Адже для отримання хорошого напору ємність повинна бути піднята досить високо, а для нормальної експлуатації взимку потрібна складна теплоізоляція. Я вирішив вчинити інакше.
Мій водонапірний бак з нержавіючої сталі, ємністю близько 60 л, має лише один вихідний отвір внизу. Зверху ж він герметично закритий кришкою з текстоліту. Насос, встановлений у колодязі, подає воду від забірника з зворотним клапаном у витратну систему і паралельно — у бак. Оскільки останній не сполучається з атмосферою, повітря над рівнем поступово стискається і, виконуючи роль пневматичної пружини, що виштовхує воду з бака, створює необхідний напір. Така схема дозволила розмістити напірний бак у підпіллі. Оскільки там і взимку немає мінусових температур, його теплоізоляція виявилася зайвою.

1 — водоприймач з зворотним клапаном, 2 — електронасос, 3 — напірний бак, 4 — колодязь, 5 — блок управління, 6 — манометр, 7 — вентиль, 8 — датчики рівня, 9 — витратна труба.
Роботою електронасоса керує нескладний тиристорний пристрій, що автоматично підтримує заданий рівень води. Датчиками служать два найпростіші електроди з мідної дроту Ø 2,5 мм. Вони кріпляться болтами до текстолітової кришки бака таким чином, щоб відстань між їх кінцями була 15—20 мм, а верхній з них знаходився на рівні, при якому повітря в баку виявляється стиснутим до 1—1,5 атм.
Система управління працює наступним чином. Коли рівень води в баку досягне верхнього, коротшого електрода, тиристор (див. рис.) відкриється, реле розімкне контакти, через які напруга подавалася до електродвигуна насоса. Одночасно пара нормально розімкнутих контактів з’єднає між собою електроди датчика. Коли в міру витрачання рівень води опуститься нижче обох електродів, електричний ланцюг «електроди — вода — стінка бака — маса» розімкнеться, тиристор закриється і реле відпустить якір. Насос знову ввімкнеться в мережу і почне подавати воду.

Необхідною умовою працездатності системи є герметичність напірного бака та зворотного клапана водозабірника. Тому кришка кріпиться до бака болтами через гумову прокладку. Отвори під болти електродів свердляться з мінімальним зазором і при збиранні ущільнюються гумовими шайбами. При витоку з бака стиснутого повітря тиск у системі, що визначає напір, можна відновити, підкачавши повітря насосом. Для цього у верхню кришку врізається ніпельний золотник від велосипедної або мотоциклетної камери. Напору достатньо і для домашніх потреб, і для поливу городу.
В. БЕРДНИКОВ, п. Васильєво, Зеленодольський р-н, Таджикистан
«ПУСКАЧ» ДЛЯ НАСОСА
Хочу поділитися досвідом з тими, хто користується для підйому води з глибоких колодязів електронасосами відцентрового типу. Щоб такий насос завжди був готовий до роботи, він повинен бути постійно заповнений водою. Але якщо зворотний клапан водоприймача недостатньо герметичний, після зупинки вода може піти з вхідного патрубка, що ускладнить подальший пуск. Позбутися клопотів з заливання допоможе невелика переробка системи. Встановіть між насосом та водозабірником невелику проміжну ємність, як показано на рисунку.

1 — труба водоприймача, 2 — наповнювальний резервуар, 3 — заливна горловина, 4 — електронасос, 5 — вихідна труба насоса.
Перед першим пуском заповніть цей бачок водою і щільно закрийте заливну горловину різьбовою кришкою з прокладкою. Оскільки насос під’єднаний до нижньої точки бачка, а водоприймач — до верхньої, вода звідти не піде навіть при несправному зворотному клапані і механізм завжди буде готовий до роботи. Більше того, якщо бачок досить великий, а приймальна труба відведена не від самої нижньої його точки, а з відступом у кілька сантиметрів від дна, додаткова ємність послужить і як фільтр-відстійник.
«М-К» 5’86, А. ПОТАПОВ
