«Запрягите… лебедку» — под таким заголовком опубликован в «Моделисте-конструкторе» № 8 за 1995 год материал о разработанной мною системе электровспашки. Далеко не последняя роль в ней отводится буксируемому плугу, конструкцию которого предлагается сделать предельно облегченной (чтобы меньше утомляться при переносе к началу каждой борозды).
А теперь предлагаю читательской аудитории новый вариант плуга-«перышка». Масса у него действительно небольшая — 13,7 кг (без учета рукояток) плюс дополнительно устанавливаемое (для лучшего вхождения в почву, подрезания и переворачивания пласта) 4,5-килограммовое утяжеление. От более ранних моих разработок и прототипа, автором которого является Г. Одегов из Нижнего Тагила («Моделист-конструктор» № 6 за 1990 г.), предлагаемая конструкция отличается также наличием глубокого выреза в рабочем органе, существенно снижающем сопротивление грунта, и рядом других технических решений.
С электролебедкой и плугом управляюсь один, что для окружающих — в диковинку. Вся деревня сбегается смотреть, как плугом «нечистая сила орудует», а пахарь при сем вроде лишь присутствует: в белой рубашечке и лакированных штиблетах. С точки зрения сторонних наблюдателей, мои действия на земельном участке и работой-то назвать весьма трудно.

Сперва я устанавливаю в начало будущей борозды сам плуг и делаю два «копка» лопатой, чтобы лемех сразу вошел в землю. Затем направляюсь к электролебедке и, став на трубчатое основание якоря, включаю электроагрегат.
Вращаясь, барабан лебедки наматывает на себя (подводка — снизу) капроновый трос с привязанным к нему плугом. И на земельном участке появляется достаточно глубокая ровная борозда. За ней (после очередного переноса плуга) следует вторая, третья… А вскоре и весь участок оказывается вспаханным.

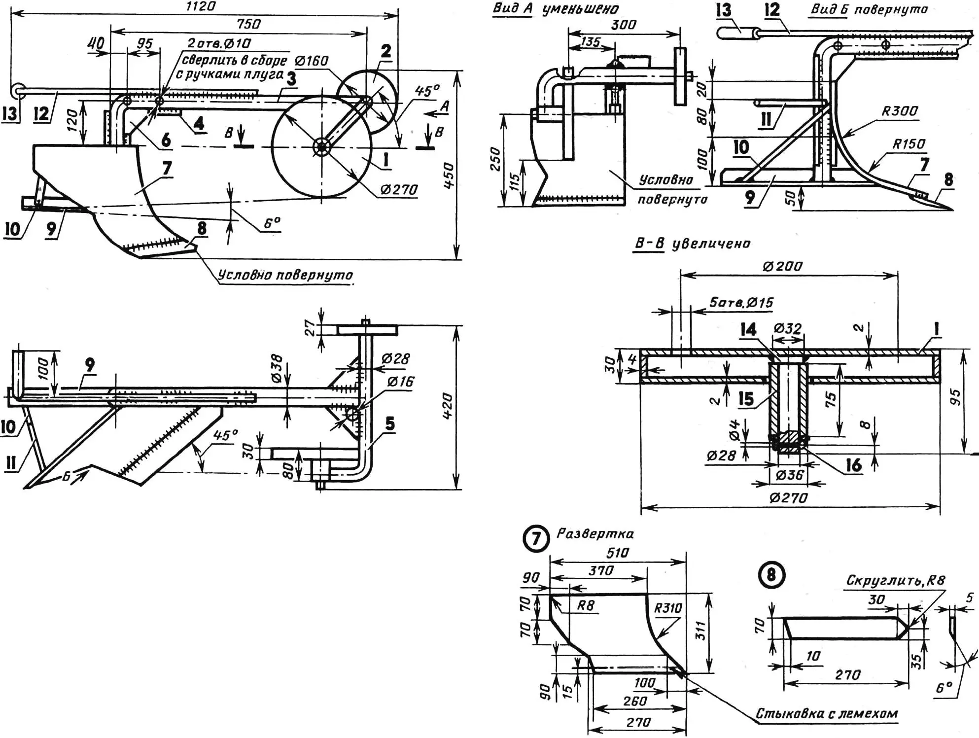
1 — диск бороздного колеса, 2 — полевое колесо, 3 — грядиль (стальная труба 38×4), 4 — элемент усиления (стальной пруток Ø 14, 3 шт.), 5 — поперечина (стальная труба 28×3), 6 — косынка (Ст3, лист s5, 3 шт.), 7 — отвал (из корпуса газового баллона высокого давления), 8 — лемех (износостойкая сталь, лист s5), 9 — ползун (стальной уголок 30×30), 10 — распорка (стальной пруток Ø 16), 11 — палец (стальной пруток Ø 16), 12 — кронштейн Г-образный (стальной пруток Ø 16), 13 — ручка (отрезок резинового шланга), 14 — ось, 15 — втулка (стальная труба 36×4), 16 — шплинт, шайба.
К рукояткам во время рабочего хода на легких и средних почвах не прикасаюсь, — благодаря своей особой «геометрии» плуг без какой-либо помощи со стороны пахаря отлично «держит» борозду. Пашет сам и на неровных (в отличие от уже упоминавшегося одеговского прототипа), гористых участках. Кстати, эта особенность делает мой плуг поистине незаменимым для возврата в сельское хозяйство земель, порушенных войной. Например, при распахивании старых минных полей в Белоруссии и новых — в «горячих точках планеты». Надо лишь позаботиться о соответствующей защите самого пахаря, снабдив его хотя бы бронированным щитом.
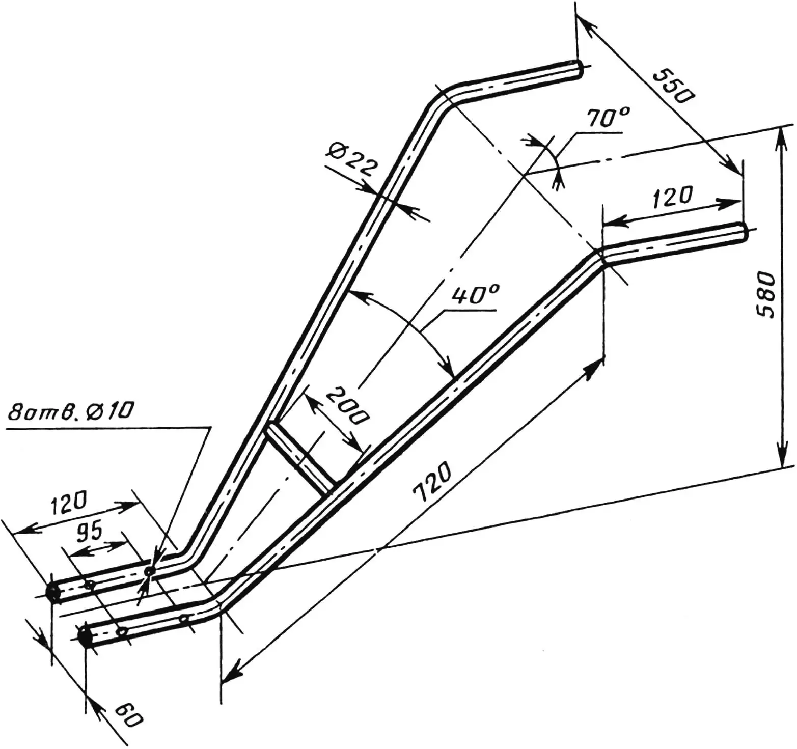
Что же касается раскорчевки или, скажем, вспашки тяжелых глинистых почв, то тут ничего не остается как «подналечь» на рукоятки плуга. Благо конфигурация у них удобная, с учетом требований эргономики. Рукоятки — съемные (чтобы плуг при хранении и перевозках не занимал много места), изготавливаются из отрезков стальной трубы 22×3 и вместе с приварной распоркой имеют суммарную массу 2,7 кг.

Грядиль плуга выполняется также из трубы 38×4 с усилением за счет приварных косынок и 14-мм стальных прутков. В качестве лемеха используется заточенная соответствующим образом пластина из износостойкой легированной стали. С отвалом, вырезанным по развертке из газового баллона, она соединена электросваркой. Убежден, что в совокупности с упоминавшимся уже треугольным вырезом и найденным экспериментальным путем углом атаки в 6° такое техническое решение как нельзя лучше способствует росту эксплуатационных качеств плуга.
Бороздное и полевое колеса самодельные. Изготовлены из листовой стали толщиной 2 мм с использованием отрезков труб в качестве приварных оси и ступицы. Но можно приспособить здесь и готовые детали — от списанной сельхозтехники.

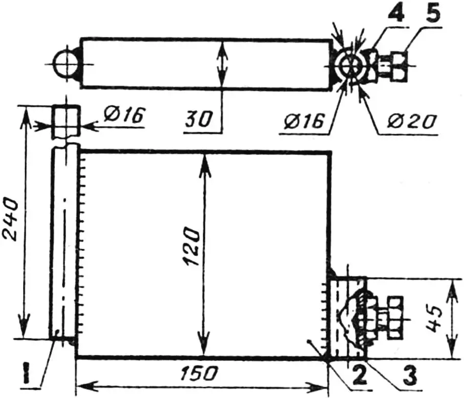
1 — шток (стальной пруток Ø 16), 2 — плита (Ст3), 3 — втулка (стальная труба 20×2), 4 — гайка М10, 5 — болт М10.
Как свидетельствует практика, неплохим подспорьем для плуга-электролебедки способен стать мототягач, сблокированный с грузовой тележкой. Конструкция такого агрегата с достаточной полнотой уже освещалась на страницах журнала, и изготовленный мною вариант ничем существенным от нее не отличается. Разве что кронштейны и им подобная «мелочь», которые удачно вписываются в общую концепцию тягача, имеющего более мощный двигатель (от мотороллера «Турист»), резонансовую выхлопную трубу (газы с силой бьют по земле и тут же растекаются, не мешая дышать) да емкую грузовую тележку.
ОТ РЕДАКЦИИ
Идея использования буксируемого «механизированной лебедкой» плуга — для земледельцев не новость. Более того, еще в 1865 году предприимчивый Фаулер пытался внедрить в практику пахоту с применением канатной тяги и паровой машины (локомобиля), находящейся на краю поля. На маховик последней наматывался канат, пропущенный через ролики. А тот, в свою очередь, приводил в действие буксируемый балансирный плуг, который, перемещаясь по мере вспашки вдоль поля, прокладывал одну за другой поперечные борозды.
Несколько иной подход к осуществлению заманчивой идеи предлагал Говард. Благодаря хитроумной системе канатов и блоков плуг по полю буксировался без передвижения паровой машины. Но как и у Фаулера, при такой вспашке случались огрехи. Плуг недостаточно ровно «держал» борозду, путались и рвались канаты, ломалась сложная техника. Пахота, что называется, влетала в копеечку, особенно при использовании варианта с двумя локомобилями, передвигающимися вдоль поля. Однако энтузиасты не унывали. В том числе и в нашей стране. Расширился диапазон их творческого поиска. Особенно после того, как в 1922 году в Москве, на Бутырском хуторе были проведены испытания электролебедки с балансирными плугами.

Пропагандистом комплекса «лебедка — плуг» выступает и «Моделист-конструктор». Благодаря ему, например, стал достоянием многих опыт В. Морозова из поселка Павлово-на-Неве (Ленинградская область), обрабатывающего приусадебный участок электроплугом собственного изготовления (см. материал «Пашем… электродрелью», №9 за 1981 г.). Удачные технические решения, содержащиеся в этой конструкции, получили свое дальнейшее развитие. Лучшие из появившихся затем разработок были с достаточной полнотой и оперативностью представлены читателям и подписчикам нашего издания (№ 3 за 1989 г., №4 за 1994 г., №2 за 1995 г.). Хорошим подспорьем, по признанию самих самодеятельных конструкторов, явилась также обстоятельная статья «Плуг рассчитываем и строим сами» (№ 1 за 1994 г.).
Интересную многим, судя по редакционной почте, тему редакция закрывать не намерена. И сегодняшняя публикация — еще одно тому подтверждение.
В. РАДЬКОВ


