При розробці проекту та будівництві бани-сауни на садовій ділянці я виходив з того, щоб на неї знадобилося якомога менше матеріалів і часу. І це, мені здається, вдалося, причому в основному за рахунок зменшення габаритів споруди, досягнутого завдяки заміні великого мильного відділення малим душовим. Крім того, конструкція сауни розрахована так, що всі її основні елементи можна виготовити самому або замовити в майстерні за кресленнями.
Малогабаритна піч-кам’янка та прямоточна система отримання душової води та пари дозволяють до мінімуму скоротити час підготовки лазні до дії: після розтоплення печі через 10—15 хвилин вже можна приймати душ, а сухий пар з температурою 100° С і вище при відносній вологості 5—6% готовий через 25—30 хвилин. Пропускна здатність бани-сауни не обмежена: підливай воду в баки, підкидай дров у топку. В дні «паломництва» друзів і сусідів повний лазневий сервіс проходило до 15 осіб.

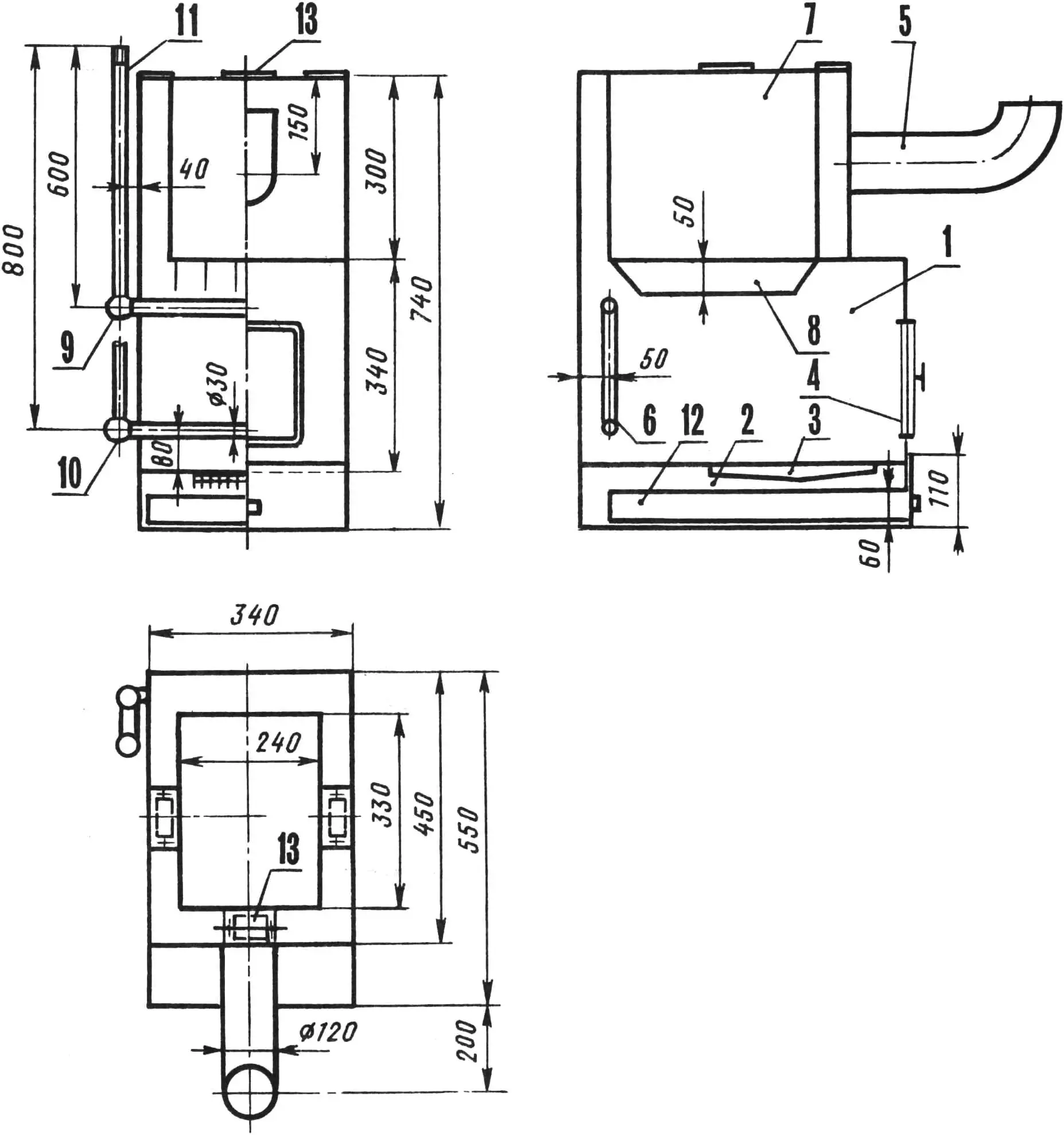
1 — роздягальня, 2 — парна, 3 — душова, 4 — піч, 5 — азбестовий екран, 6 — полок, 7 — сходинка, 8 — піддон, 9 — решітка, 10 — водостік, 11 — цегляна кладка, 12 — змішувач, 13 — відливна дошка, 14 — екран, 15 — лавка.
Така сауна може бути легко «вписана» і в кімнату житлового будинку, в побутовку тваринників на фермі, будівельників або інших робітників, зайнятих на пересувних ділянках або працюючих вахтовим методом.
КОМПОНОВКА
Проектом передбачені три основні приміщення бани-сауни: роздягальня, парна та душова. Загальна компоновка їх дана на рисунку 1.
ФУНДАМЕНТ
Якщо на місці будівництва ґрунт піщано-суглинковий, з глибоким заляганням ґрунтових вод, фундамент достатньо виконати у вигляді бетонних тумб під кутами споруди (після зняття рослинного шару землі). На ґрунтах, здатних до спучення, фундамент закладається на глибину замерзання ґрунту.
ПРИМІЩЕННЯ БАНИ-САУНИ
Основою споруди служить нижня обв’язка (рис. 2), виконана з бруса 80X120 мм. Лаги мають переріз 30Х120 мм. По кутах бруси врізані в півдерева і кріпляться цвяхами. Обв’язка укладається на фундамент з прокладкою гідроізоляції з руберойду та перевіркою по діагоналях.

Стіни лазні виконуються у вигляді окремих каркасно-засипних щитів у горизонтальному положенні на плазу. Їх каркаси в’яжуть з брусів перерізом 50X60 та 50X30 мм. З’єднання елементів внакладку, з врубкою на півдерева.
На готовий каркас накладають шар руберойду або поліетиленової плівки та зашивають у горизонтальному напрямку (по висоті щита) дошками товщиною 15—20 мм та шириною 100—120 мм (в чверть). Щит перевертають, порожнину засипають сухими деревними тирсою з трамбуванням (або мінеральною ватою), покривають поліетиленовою плівкою, двома шарами паперу та зашивають дошками по діагоналі щита. Таке розташування дошок створює поздовжню стійкість.

а — бічний правий, б — передній.
Найкращим матеріалом для зовнішньої обшивки є хвойні породи дерева. Стеля парної, стіну, що прилягає до полка, та сам полок необхідно виконати з листяних порід. Найкращою з них є осика. Вона має меншу теплопровідність, швидко прогрівається (хвойні породи, що містять багато смоли, обпалюють шкіру; на стелі з’являються «сталактити»). Щоб уникнути утворення щілин, вологість дошок не повинна перевищувати 15%. Така стінка добре тримає тепло без «запотіння». Бічний правий щит (рис. 3а) має проріз для встановлення печі та вікна. У передньому (рис. 3б) — прорізи для дверей та вікна в роздягальню. Бічний лівий та задній щити, що мають рівномірно рознесені стійки, зашиваються суцільно. На всі щити на висоті 2020 мм, по стійках, набивається брусок 30X40 мм для опори стельових балок та підшивки стелі. Бічні щити встановлюють на нижню обв’язку; з торців та в середині пришивають довгими цвяхами.
Кріплення переднього та заднього щитів до торців бічних здійснюється трьома шурупами («глухарями») по дереву через м’яку прокладку. «Глухарі» діаметром 10— 12 мм та довжиною 180 мм можна виготовити на токарному верстаті. В крайньому випадку надійне кріплення виконується і цвяхами аналогічної довжини. Стики зашиваються дошкою шириною 150 мм з м’якою прокладкою.
Підлога в парній та роздягальні настилається дошками товщиною 30 мм з осики, по рейках 30X40 мм, пришитим до нижньої обв’язки та лаг.
Стеля підшивається на бруси та балки дошками товщиною 20 мм в чверть. Потім зверху настилається кілька шарів щільного паперу, поліетиленова плівка, на висоту балок засипаються деревні тирса, які закривають руберойдом. Перегородка лазні виконується дошками товщиною 20 мм (в чверть). Каркасом їй служать бруски на щитах та стійки, сперті на підлогу та стелю. Дах лазні односхилий, покритий шифером.
Двері виготовляються у вигляді рам з брусків 40X50 мм, по кутах та на перемичці зав’язаних в замок. В середині вони затягуються березовою фанерою 4 мм (в чверть), з обох сторін, на казеїновому клеї.
Піддон у душовій розміром 900X900 мм виготовлений з листової сталі товщиною 1,5—2 мм. Відбортовка висотою 120 мм по кутах заварюється суцільним швом. Ухил для стоку води виконується за рахунок витяжки металу по діагоналях від центру. В центрі до отвору Ø 50 мм приварюється патрубок. З обох сторін піддон фарбується в два шари суриком та кріпиться до нижньої обв’язки цвяхами. На нього встановлюється дерев’яна решітка.
Стічна вода трубою в 2,5″ (рис. 1) відводиться за межі споруди в яму розміром 1200X800X600 мм, облицьовану шифером та перекриту плитою та шаром землі. Ці роботи зручніше виконати до встановлення стін лазні.
Стіни душової на висоту зросту людини покриваються гідроізоляцією. Поверхня стін вирівнюється шпаклівкою.
Після висихання стіни покриваються густою олійною фарбою, по якій спочатку в кутах, а потім по всій поверхні накладають з перекриттям смуги текстильного матеріалу (старі простирадла та ін.) та прокатують катком. Покриття виконується в два шари (необхідно перекрити стик «стіна — піддон»). Так само обробляється підлога в роздягальні. Остаточно душова та роздягальня фарбуються «сріблянкою» (алюмінієва пудра на прозорому лакі). Після п’ятирічної експлуатації така гідроізоляція показала свою високу надійність.
Душова обладнується відкидною лавкою, полицями. Прохід з роздягальні в душову закривається відкидною завісою.

1 — топка, 2 — зольник, 3 — колосник (стандартний), 4 — дверцята, 5 — димохід, 6 — водонагрівач, 7 — кам’янка, 8 — ребра, 9 — куточок 3/4″Х1/2″, 10 — трійник 3/4″Х1/2″Х1/2″, 11 — труба 1/2″, 12 — ящик зольника, 13 — кришка люка.
Піч (рис. 4) — двокодова, з розвиненою поверхнею нагріву кам’янки та топкою, ізольованою від приміщення лазні; зварена суцільним швом з листової сталі товщиною 4 мм.
Основою встановлення печі та захисного екрана є цегляна кладка (рис. 1). Топка та димохід виведені через стінку в півцеглини за межі парної. Сполучення «кладка — корпус печі» ущільнюються м’якою азбестовою прокладкою. Ззовні на димохід встановлюється труба висотою 2,5 м. Три стінки екрана (рис. 1, поз. 5) з азбоцементних листів розмірами 1100X500X8 мм кріпляться болтами до куточків 40X40 мм, вихід яких внизу утворює ніжки. Таке пристроєння, крім захисту, добре виконує функцію вентиляції приміщення конвективним потоком. Другий екран (поз. 14) з листа на висоту печі кріпиться на перегородку (з зазором внизу 100 мм).
При порівняно невеликих розмірах піч повністю забезпечує безперервну підготовку води та пари. Залежно від інтенсивності горіння в топці та кількості вилитої води на кам’янку можна отримати режим сауни — сухий пар з температурою до 100° С і вище при відносній вологості 5—6%, або вологий пар при температурі 60—70° С при відносній вологості 40% — російська лазня з вінником.
ВОДОПІДГОТОВКА
На рисунку 5 дана схема водопідготовки. Напір, що збуджує циркуляцію води в нагрівальному контурі, виникає за рахунок вагової різниці стовпів холодної води в опускній трубі та нагрітої — в підйомній трубі.
Прямоточна система підготовки душової води полягає в тому, що гаряча вода на змішувач відбирається не з бака нагрітої води, як це зазвичай робиться, а з підйомної труби (поз. 2). Це дозволяє до мінімуму скоротити час підготовки душової води, не дочекавшись, поки вся вона в баку нагріється до певної температури.
Напірні ємності на 120 л встановлені на металевій конструкції зі старих труб, примкнутій до правої сторони бани-сауни, на висоті 400—500 мм по відношенню до решітки змішувача. Різьбові штуцери 1/2″ приварюються до днища баків в кутах (по діагоналі). Розводка виконана трубами та арматурою 1/2″ на різьбі. При монтажі необхідно дотриматися мінімальних ухилів труб для зливу води з системи. Зовнішні та внутрішні поверхні ємностей ґрунтуються та фарбуються олійною фарбою. На бак гарячої води з усіх сторін накладається теплоізоляція з пінополістиролу товщиною 50 мм. Живлення напірних баків водою залежно від місцевих умов може проводитися від водопровідної мережі, з резервного бака насосом і, нарешті, відрами з підставкою драбини.
В нашому випадку нагрів води проводиться також і від сонячної батареї. Пристроєння її просте. Тонкостінна зварна батарея, пофарбована чорною фарбою, поміщається в ящик та затягується поліетиленовою плівкою. Шарнірна підвіска ящика забезпечує два ступені свободи переміщення — так, щоб більшу частину дня промені падали нормально на поверхню батареї. Через штуцери батарея підключається гнучкими шлангами до бака гарячої води. В спекотний сонячний день вода нагрівається до 70° С; навіть до ранку зберігається температура 40—45° С — в будь-який час можна прийняти душ.

1 — водонагрівач, 2 — підйомна труба, 3 — бак гарячої води, 4 — опускна труба, 5 — змішувач, 6 — бак холодної води, 7, 8, 9 — вентилі.
Користуватися лазнею можна і в зимових умовах. Для цього в схемі передбачений вентиль (рис. 5, поз. 8), що відключає бак холодної води: її в цьому випадку відбирають зі зворотної труби.
При невеликих від’ємних температурах зовнішнього повітря необхідно: розтопити піч, залити в бак відро води, відкрити двері парної та трохи привідкрити вентиль гарячої води змішувача (для прогріву). Після встановленої циркуляції в контурі долити води до потреби. При більш низьких температурах першу порцію води підігрівають до 50 — 60° С.
До зимового сезону необхідно обезводити систему: злити воду шлангом через вентиль (рис. 5, поз. 9) з нагрівального контуру; відкрити вентилі змішувача; повернути рукоятку на нижній хід та злити воду з сонячної батареї.
«М-К» 2’90, Б. ВДОВІН, інженер
