Первую борозду на своем приусадебном участке житель поселка Павлово-на-Неве Кировского района Ленинградском области В. И. Морозов провел с помощью электрифицированной лебедки весной 1980 года. Убедившись в надежной работе агрегата, Василий Иванович прислал в редакцию его описание, которое было опубликовано в сопровождении комментария специалиста Всесоюзного института сельскохозяйственного машиностроения имени В. П. Горячкина (см. «М-К», № 9 за 1981 г.).
Конструкция привлекла большое внимание любителем технического творчества, занимающихся созданием средств малой механизации на приусадебных участках.
Еще больший интерес электрифицированная лебедка вызвала после показа ее по Центральному телевидению в одной из передач «Это вы можете». Выполняя многочисленные пожелания наших читателей и телезрителей, мы помещаем сегодня подробные чертежи модернизированной электролебедки.

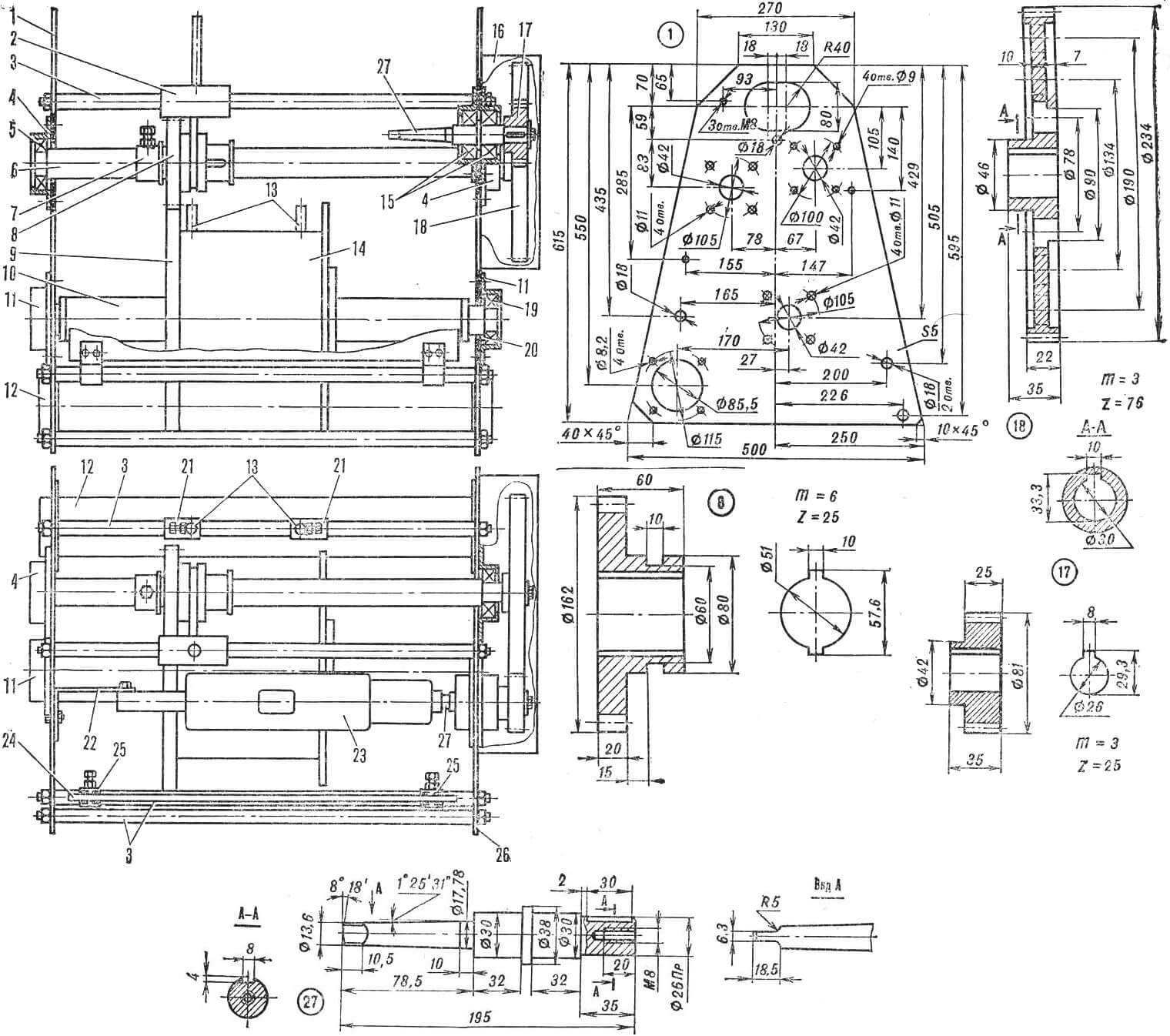
1 — левая щека, 2 — рычаг муфты сцепления, 3 — поперечные штанги, 4 — корпуса подшипников вала муфты (Ст3), 5 — подшипник № 207, 6 — вал муфты, 7 — втулка муфты, 8 — шестерня муфты (Ст45), 9 — шестерня тросового барабана, 10 — труба-вал тросового барабана, 11 — корпуса подшипников тросового барабана (Ст3), 12 — опорная труба, 13 — ограничители хода троса, 14 — тросовый барабан, 15 — корпуса (Ст3) с подшипниками № 206, 16 — кожух редуктора, 17 — ведущая шестерня (Ст45), 18 — ведомая шестерня (Ст45), 19 — подшипник № 207, 20 — проставочное кольцо, 21 — муфты ограничителей хода троса, 22 — кронштейн крепления электродрели (Ст3), 23 — электродрель, 24 — щит ограждения, 25 — кронштейны щита, 26 — правая щека, 27 — хвостовик привода (Ст45).
Мне очень хотелось облегчить обработку своего приусадебного участка, механизировать ее. Какую технику надо нам, садоводам-любителям? Конечно же, простую и безотказную. Из этого я исходил, когда решил изготовить электрифицированную лебедку. Такой она и получилась. Многолетний опыт эксплуатации подтвердил ее надежность, мало того, производительность: нелегкая прежде работа на участке сейчас для меня — удовольствие.

1 — цапфа (Ст3, 2 шт.), 2 — труба-вал, 3 — фланец барабана (Ст3, 2 шт.), 4 — заклепки, 5 — шестерня (Ст45), 6 — малая щека (Д16), 7 — барабан (Д16), 8 — большая щека (Д16)
Пашем вдвоем с сыном: я за плугом, он на лебедке. И не только пашем, но и сажаем картофель, окучиваем посадки, выкапываем урожай.
Плуг я сделал по образцу конного, только укоротил водило и сместил его к лемеху, снабдил двумя роликами: передний для регулировки глубины пахоты, задний — для откатывания плуга назад, на новую борозду.

1 — рычаг, 2 — отрезок трубы, 3 — вкладыш (2 шт.), 4 — вилка.
Эти переделки не столь сложны, поэтому здесь я их не привожу. Расскажу лишь о том, как устроен агрегат.

1 — опорный уголок 50Х50 мм, 2 — несущий уголок 50Х50 мм, 3 — кольцо (Ст3), 4 — колья (Ст3, 2 шт.), 5 — распорный уголок 50Х50Х400 мм.
Усовершенствованный образец, показанный в телепередаче «Это вы можете», в принципе не отличается от первоначального варианта, описание которого публиковалось в «Моделисте-конструкторе».

1 — наконечник (Ст45), 2 — труба-вал, 3 — цапфа (Ст45), 4 — винт М10 (8 шт.).
Между двух, теперь уже дюралюминиевых, щек з подшипниках насажено несколько горизонтальных осей. Сзади сверху установлена однофазная электродрель мощностью 600 Вт с числом оборотов в минуту 250. Задняя рукоятка ее по-прежнему закреплена на Г-образном стальном кронштейне, но уже не приваренном, а привинченном к дюралюминиевой щеке.

1 — втулка (Ст3), 2 — гайка М10.
Сплав Д16 использован и в конструкции тросового барабана, из него сделаны наиболее массивные детали.

1 — фланец (2 шт.), 2 — труба.
Необходимость уменьшения веса лебедки выяснилась в процессе эксплуатации. Обработка участка идет довольно быстро, поэтому и агрегат переставлять по опорной трубе приходится часто. До модернизации он весил примерно центнер. Сейчас, с введением дюралюминиевых деталей, вес заметно поубавился. Да и от самой опорной трубы мы отказались, вместо нее используем деревянный шест соответствующей толщины. А чтобы он не перетирался в местах контакта со щеками, применили опорную трубу в лебедке — между щеками. Упростили и козелки, сделали их полегче.

1 — бобышка (Ст3, 2 шт.), 2 — труба.
Это, впрочем, еще не все. Возможность снизить вес агрегата видится в замене стальных шестерен и корпусов подшипников… капроновыми. Но это в будущем.

1 — горизонтальная труба, 2 — вертикальная труба, 3 — гайка М8, 4 — гайка М10.
Претерпели конструктивные изменения также некоторые узлы лебедки. Я имею в виду появление вместо жестких сварных «ворот» муфт ограничителей хода троса, затем кронштейнов щита ограждения и самого щита.
В. МОРОЗОВ, г. Павлово-на-Неве, Ленинградская обл.


