Когда-то на телевидении была популярная передача «Это вы можете», в которой умельцы рассказывали о созданных ими конструкциях. Пожалуй, в ней впервые и появилась информация о пневмоходах. А публикации в журнале «Моделист-конструктор» подтолкнули многих энтузиастов, в том числе и наших, ангарских (в основном рыбаков-любителей) к изготовлению подобных машин своими руками. Пневмоход подкупал своей внешней простотой, обещающей неплохие технические характеристики. На самом же деле его конструкция оказалась непростым «орешком», расколоть который сумели, наверное, единицы.
На первых порах в Приангарье появлялись, как правило, громоздкие и металлоемкие машины, далекие от технического и эстетического совершенства. Эти, можно сказать, «гадкие утята» так и не обрели ценных качеств пневмохода, разочаровав своих создателей до полного к ним охлаждения.
Постепенно пневмоходный бум у нас прошел, и лишь немногие наиболее стойкие продолжали строить и худо-бедно эксплуатировать свои конструкции.
У меня тоже было искушение испытать свои силы на пневмоходе. Но, взвесив возможности, откладывал работу над ним до лучших времен.
Через несколько лет по настоятельной просьбе одного моего знакомого, страстного рыбака-любителя, я построил для него пневмоход. Знакомый предоставил в мое распоряжение мотоцикл «Восход-3М» с условием: к летнему сезону пневмоход должен легко трансформироваться обратно в мотоцикл. Так, на базе «Восхода» и появился «Лошарик».

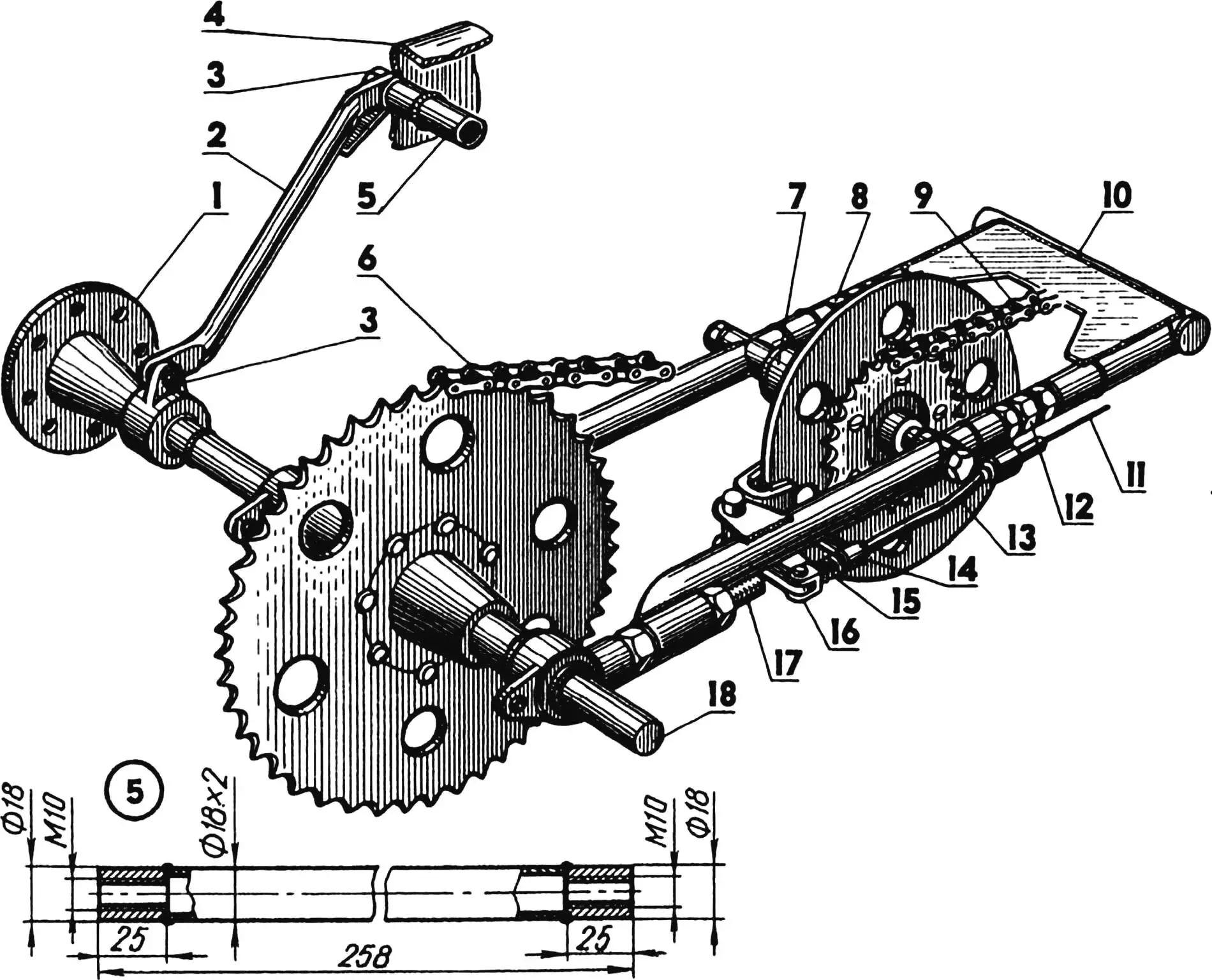
1 — багажник (на виде сзади условно не показан); 2 — подкосы; 3 — тормозной диск; 4 — трос тормоза переднего колеса; 5 — двигатель (от мотоцикла «Восход-3М»); 6 — глушители; 7 — большая звездочка промежуточного редуктора; 8 — рама задней подвески; 9 — ходовая звездочка; 10 — рым; 11 — распорка; 12 — подседельник рамы мотоцикла; 13 — спица (труба 18×2, 4 шт. на колесо); 14 — вал заднего моста; 15 — подножка пассажира (убрана); 16 — подножка водителя; 17 — педаль переключения передач; 18 — педаль тормоза задних колес; 19 — рычаг тормоза переднего колеса; 20 — вилка переднего колеса; 21 — фара; 22 — перо вилки; 23—тормозной барабан; 24 — пневматик (на виде сбоку условно не показан); 25 — продольный бандаж; 26 — поперечный бандаж; 27 — скобы соединения бандажа
Это трехколесная машина повышенной проходимости на пневматиках низкого давления размерами 1200×500 мм. Она предназначена для поездок в одиночку или с пассажиром. Рассчитана на максимальную нагрузку 180 кг (масса водителя, пассажира и груза в багажнике). Пневмоход неплохо передвигается по рыхлому снегу глубиной до 450 мм со средней скоростью 25 км/ч. Весной и осенью пневмоход легко преодолевает забереги, не боится грязи и наледи. Тяговые качества «Лошарика» позволяют ему тянуть за собой нарты с грузом до 150 кг.
«Лошарик» — открытая машина. Без проблем эксплуатируется при температуре воздуха до минус 25 °С. От переохлаждения водителя защищает теплая одежда, а также легкосъемное ветровое стекло и щитки (на рисунках не показаны).
Принудительного охлаждения двигатель пневмохода не имеет, но предусмотрена возможность его обдува электрическим вентилятором постоянного тока напряжением 12 В, подключаемого к генератору двигателя через выпрямительный мост.

1 — обойма (труба 42×2); 2 — заглушка (лист s2); 3, 6 — перемычки (труба 22×2); 4 — подкос (труба 28×2); 5 — несущая втулка (труба 32×3); 7 — кронштейн фары (лист s2); 8 — болт M10х1,25; 9 — упор оболочки тормозного троса (от мотоцикла)
При некоторых недостатках конструктивной схемы данный пневмоход в умелых руках — в целом приличная машина.
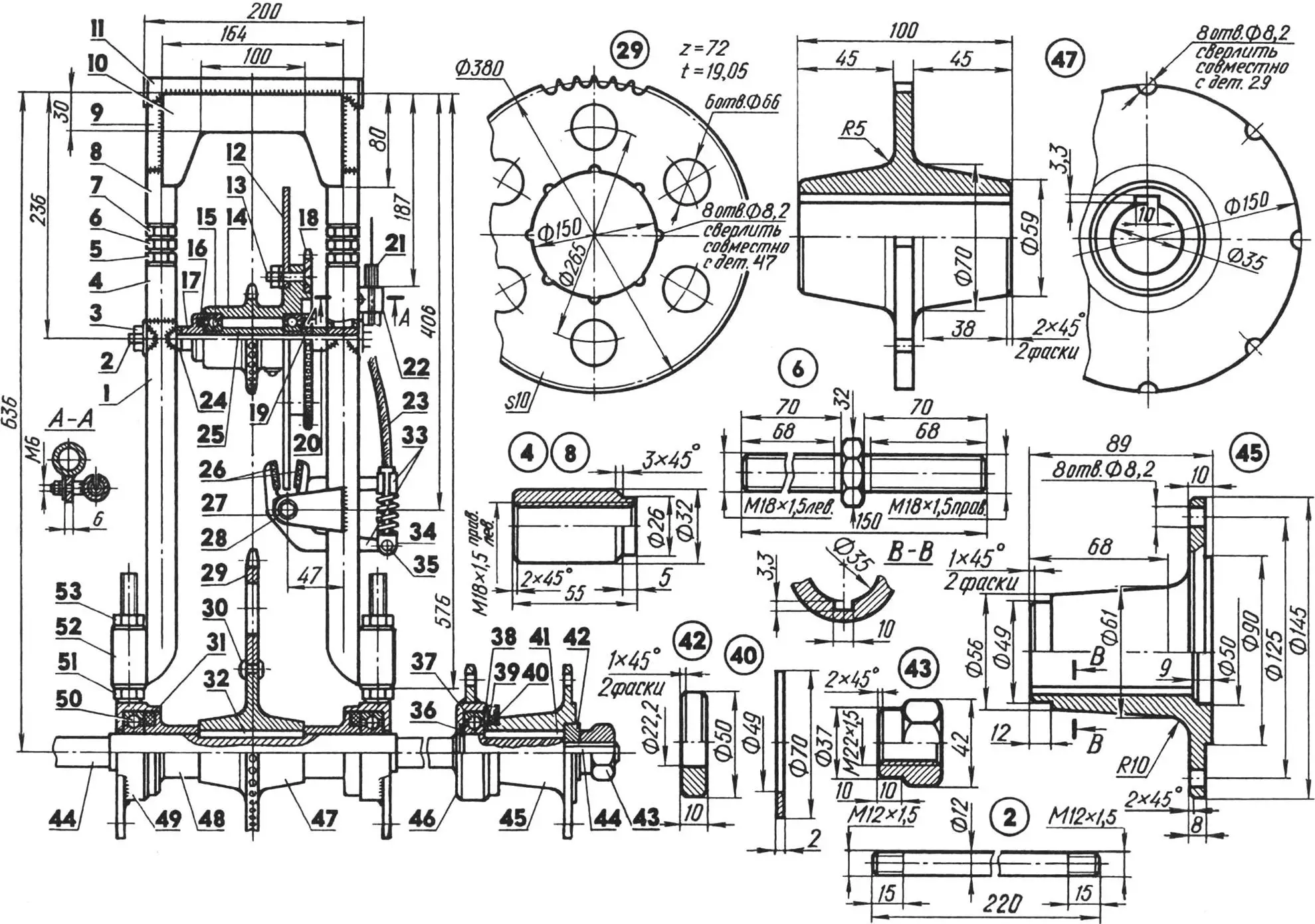
Описание «Лошарика» начну с устройства его передней вилки. Рама вилки сварена из труб разного диаметра. Обоймы внизу имеют хомуты для фиксации телескопических амортизаторов от перьев «Восхода-3М». Внутрь обойм вставлены деревянные бобышки длиной приблизительно 80 мм, в которые дополнительно упираются амортизаторы, а снаружи приварены пластинчатые кронштейны для установки фар. Кроме того, к хомуту правой обоймы привинчен упор для оболочки тормозного троса.
Перемычками и подкосами обоймы связаны с несущими трубами рамы. Эти трубы введены вместо перьев в мостики рулевой колонки мотоцикла. В верхнем мостике они зафиксированы гайками, а в нижнем — стяжными болтами.

1 — камера 1200×500; 2 — поперечный бандаж (резинотканевая лента 60×10); 3 — тормозной барабан (от мотоцикла «Восход-3М»); 4 — тормозной трос; 5 — перо вилки (от мотоцикла «Восход-3М»); 6 — рама вилки; 7 — фара; 8 — ступица; 9 — колесо; 10 — продольный бандаж (пожарный рукав)
В концы перьев вилки вставлена и закреплена, как на мотоцикле, длинная ось-болт ступицы переднего колеса. Сама ступица представляет собой стальную трубу диаметром 42×2 мм с приваренными к ней фланцами и стаканом под подшипник 60204. К центральному фланцу болтами М8 прикреплен диск колеса, а к боковому — тормозной барабан от «Восхода-3М» (механизм тормоза позаимствован от другого мотоцикла). С рычагом на руле он связан штатным тросом в оболочке.
Все три колеса пневмохода конструктивно одинаковые. Разница лишь в том, что переднее привинчено к фланцу ступицы восемью болтами М8, а задние прикреплены к своим ступицам стальными заклепками диаметром 8 мм и дополнительно усилены спицами — по четыре на каждое колесо.

1 — болт крепления оси колеса; 2 — ось колеса; 3 — правое перо вилки; 4 — тормозной барабан; 5 — ступица; 6 — левое перо вилки; 7 — подшипник 60204 (2 шт); 8 — распорная шайба (s5); 9 — болт М8 (6 шт.)
Ободья и ложементы колес изготовлены из трубы диаметром 18×2 мм, диски — из листовой стали толщиной 3 мм. Для уменьшения массы в дисках просверлены отверстия диаметром 40 мм. На каждое колесо наварены по 16 крючков из прутка диаметром 8 мм. К ним прицеплены поперечные бандажи — отрезки резинотканевой ленты шириной 60 и толщиной 10 мм, удерживающие пневматики на ложементах. Продольные бандажи сделаны из брезентового пожарного рукава. В местах пересечения с поперечными они «сшиты» стальными скобками из проволоки диаметром 3 мм. Однако возможна эксплуатация пневмохода и без бандажей на переднем колесе. В случае необходимости пневматики можно усилить — надеть на них дублеры из таких же камер, разрезанных по меньшему диаметру.
Промежуточный редуктор и задний мост установлены на специальной П-образной раме задней подвески, сваренной из труб диаметром 32×3 мм. Эта рама состоит в основном из двух лонжеронов и поперечной балки, усиленной сверху накладкой. К раме мотоцикла она присоединена так же, как и штатный маятник задней подвески.

1 — диск (Ст2, лист s3); 2 — обод (труба 18×2, 2 шт); 3 — крючок (пруток Ø8, 16 шт); 4 — ложемент (труба 18×2, 8 шт.)
Лонжероны раздвижные, так как имеют устройства для натяжения цепи промежуточной передачи. Задние концы лонжеронов закатаны горячим способом и снабжены винтовыми втулками для крепления заднего моста и натяжения ходовой цепи. Примерно посередине в оба лонжерона вварены посадочные втулки для оси промежуточного вала. Кроме того, слева имеются кронштейны для установки троса и рычагов механизма тормоза задних колес.
Устройства натяжения цепи промежуточной передачи представляют собой два двухсторонних болта с левой и правой резьбами М18×1,5 и контргайками. Натяжение ходовой цепи регулируется двумя болтами М18×1,5, приваренными к центральным стаканам подшипников заднего моста.

1 — ступица левого колеса; 2 — подкос (труба 21×2, 2 шт); 3 — болты М10 (4 шт); 4 — подседельник рамы мотоцикла; 5 — распорка (труба 18×2); 6 — ходовая цепь (t = 19,05); 7 — промежуточный редуктор; 8, 12 — двусторонние болты-натяжители цепи промежуточной передачи (М18х1,5 и М18х1,5 лев.); 9 — цепь промежуточной передачи (t = 12,7); 10 — рама задней подвески; 11 — тормозной трос; 13 — оболочка троса; 14, 16 — тормозные рычаги; 15 — пружина сжатия; 17 — болт-натяжитель ходовой цепи (M18x1,5, 2 шт); 18 — вал заднего моста
Ступица промежуточного редуктора выполнена заодно с малой звездочкой (z = 18, t = 19,05). К фланцу ступицы шестью болтами М8 с потайными головками прикреплены тормозной диск диаметром 300 мм и большая звездочка (z = 40, t = 12,7). В ступицу запрессованы два подшипника 204, которые вращаются на оси диаметром 12 мм и смазываются через пресс-масленку, установленную на ступице между малой звездочкой и тормозным диском. От проникновения грязи снаружи подшипники изолированы войлочными уплотнителями.
Конструкция заднего моста простая: длинный вал вращается в четырех подшипниках 207. Вал имеет три шпоночные канавки под призматические шпонки ступиц пары колес и ходовой звездочки, а также две канавки под пружинные стопорные кольца.


1 — левый лонжерон рамы (труба 32×3); 2 — вал промежуточного редуктора (сталь 20, пруток Ø12); 3 — гайка M12x1,5 крепления вала (2 шт); 4 — муфта рамы М18х1,5 лев. (2 шт); 5 — контргайка М18х1,5 лев. (2 шт); 6 — двусторонний болт-натяжитель цепи промежуточной передачи (М18х1,5 и М18х1,5 лев., 2 шт); 7 — контргайка M18x1,5 (2 шт); 8 — муфта рамы M18x1,5 (2 шт); 9 — проставка рамы (труба 32×3, 2 шт); 10 — накладка рамы (сталь, лист s2); 11 — поперечина рамы (труба 32×3); 12 — тормозной диск; 13 — болт М8 (6 шт); 14 — ступица промежуточного редуктора с малой звездочкой (z = 18, t = 19,07); 15 — подшипник 204 (2 шт); 16, 31, 39 — уплотнения (войлок, 6 шт); 17, 19 — корпуса уплотнений; 18 — большая звездочка промежуточного редуктора (z = 40, t = 12,7); 20 — регулировочная втулка (труба 24×5,9, L8,5); 21 — регулировочная муфта тормозного троса; 22 — корпус регулировочной муфты; 23 — оболочка тормозного троса; 24 — регулировочная шайба (труба 24×5,9, L3,5); 25 — распорная втулка; 26 — колодки тормозных рычагов (асболатексный картон на эпоксидном клее); 27 — ось тормозного механизма (болт М8); 28 — верхняя полка кронштейна тормозного механизма (сталь, лист s5); 29 — ходовая звездочка (z = 72, t = 19,05); 30 — заклепка (Ø8, 8 шт); 32 — призматическая шпонка (сталь 40, 8x10x100); 33 — тормозные рычаги; 34 — наконечник тормозного троса; 35 — палец (сталь 40, Ø6); 36, 38 — стопорные кольца (4 шт); 37, 50 — подшипники 207 (4 шт); 40 — крышка уплотнения (2 шт); 41 — призматическая шпонка (сталь 40, 8x10x80); 42 — упорное кольцо (2 шт); 43 — фасонная гайка М22х1,5 (2 шт); 44 — вал заднего моста (сталь 20); 45 — ступица заднего колеса (2 шт); 46— стакан внешнего подшипника (2 шт); 47 — ступица ходовой звездочки; 48 — распорная фасонная втулка (2 шт); 49 — стакан центрального подшипника (2 шт); 51, 53 — контргайки Ml8x1,5 левого болта-натяжителя ходовой цепи; 52 — втулка-кронштейн крепления заднего моста (2 шт.)
К стаканам центральных подшипников спереди приварены болты, одновременно служащие натяжителями ходовой цепи и крепежом к раме задней подвески, а сзади — проушины для присоединения багажника. Между ступицей ходовой звездочки и внутренними подшипниками на вал надеты фасонные распорные втулки с фланцами, которые удерживают в стаканах войлочные уплотнители.
К стаканам внешних подшипников приварены проушины для крепления нижних концов трубчатых подкосов. Верхние концы подкосов привинчены к подседельнику через отверстия, предназначенные для установки задних фонарей указателей поворота.
Подшипники смазываются «Литолом-24» один раз в три года после частичной разборки узлов. Ходовая звездочка (z = 72, t = 19,05) — от сельскохозяйственного агрегата, облегченная. К ступице она прикреплена заклепками диаметром 8 мм, предварительно нагретыми в кузнечном горне.
Механизм тормоза задних колес — дисковый, клещевого типа. Тормозные рычаги установлены в кронштейне, полки которого приварены к правому лонжерону. К щекам рычагов «эпоксидкой» приклеены накладки из асболатексного картона с высоким коэффициентом трения по стали. Трос от тормозной педали проходит сквозь короткую оболочку, размещенную между регулировочной муфтой и передним тормозным рычагом. Регулировочная муфта находится в корпусе, привинченном к кронштейну под правым лонжероном.
Представленный механизм тормоза довольно сложен в изготовлении. Если есть возможность, то проще использовать гидравлический привод дискового тормоза от мотоциклов «Иж-Планета-5» или «Иж-Юпитер-5-01». Соответственно подогнав кронштейн крепления и педаль под привод главного тормозного цилиндра.

1 — обрешетка (пруток Ø7); 2 — обод (лист s1,8); 3 — стенка (лист s1,8); 4 — проушина (лист s4, 4 шт.); 5 — кожух ходовой звездочки (лист s1,8); 6 — рым (пруток Ø12); 7 — днище (лист s1,8)
Багажник выполнен наполовину решетчатым для того, чтобы в нем не скапливался снег. Основные материалы его конструкции — стальной пруток диаметром 7 мм и листовая сталь толщиной 1,8 мм. Наклонная передняя стенка и днище сварены заодно с коробчатым кожухом, который защищает цепную передачу от случайных попаданий в нее посторонних предметов. Багажник довольно прочный и жесткий и позволяет перевозить не только приличный груз. Позади имеется рым, служащий прицепным устройством.
К пневмоходу багажник прикреплен болтами М10 в четырех точках: вверху — к подседельнику, внизу — к проушинам центральных стаканов подшипников заднего моста.
Все вновь изготовленные узлы после зачистки кромок были окрашены ярко-красной нитроэмалевой краской, чтобы при вынужденном движении по дорогам общего назначения пневмоход зрительно выделялся в потоке транспорта. Затем узлы были установлены на раму мотоцикла «Восход-3М», с которой предварительно демонтировалось всё, что не требовалось для эксплуатации пневмохода: крылья, передняя вилка, маятник задней подвески с амортизаторами и т.д. Электрооборудование переделке не подвергалось.
И немного о технике безопасности. Пневмоход назван «Лошариком» не случайно: из-за пружинящих дутиков он — с норовом. Поэтому я рекомендовал своему знакомому при езде на нем избегать крутых поворотов и резкого торможения (первое чревато опрокидыванием, второе — обрывом бандажей), а снежные бровки и другие подобные препятствия преодолевать с ходу и под прямым углом. Рекомендации пошли впрок: после того, как мой знакомый «объездил» «Лошарика», тот стал для него поистине незаменимым транспортным средством.
«Моделист-конструктор» № 2’2001, В. ПЕТРОВ, Красноярский край


