Я, мабуть, не помилюся, сказавши, що більшість домашніх умільців мріє мати у своєму розпорядженні універсальну бормашинку. Скільки можливостей відкриває вона власнику! Гравіювання, абразивна обробка деталей складної конфігурації, самостійне виготовлення штампів і прес-форм, свердління та зенкування отворів, розташованих у важкодоступних для звичайного дриля місцях, ювелірні роботи — це далеко не повний перелік операцій, які дає змогу виконувати цей механізм. Тому не дивно, що бормашинку через великий попит непросто придбати в магазині.
Водночас цей механізм можна зробити самому. Пропоную виконану мною відносно просту конструкцію бормашинки на базі електричної дрилі.

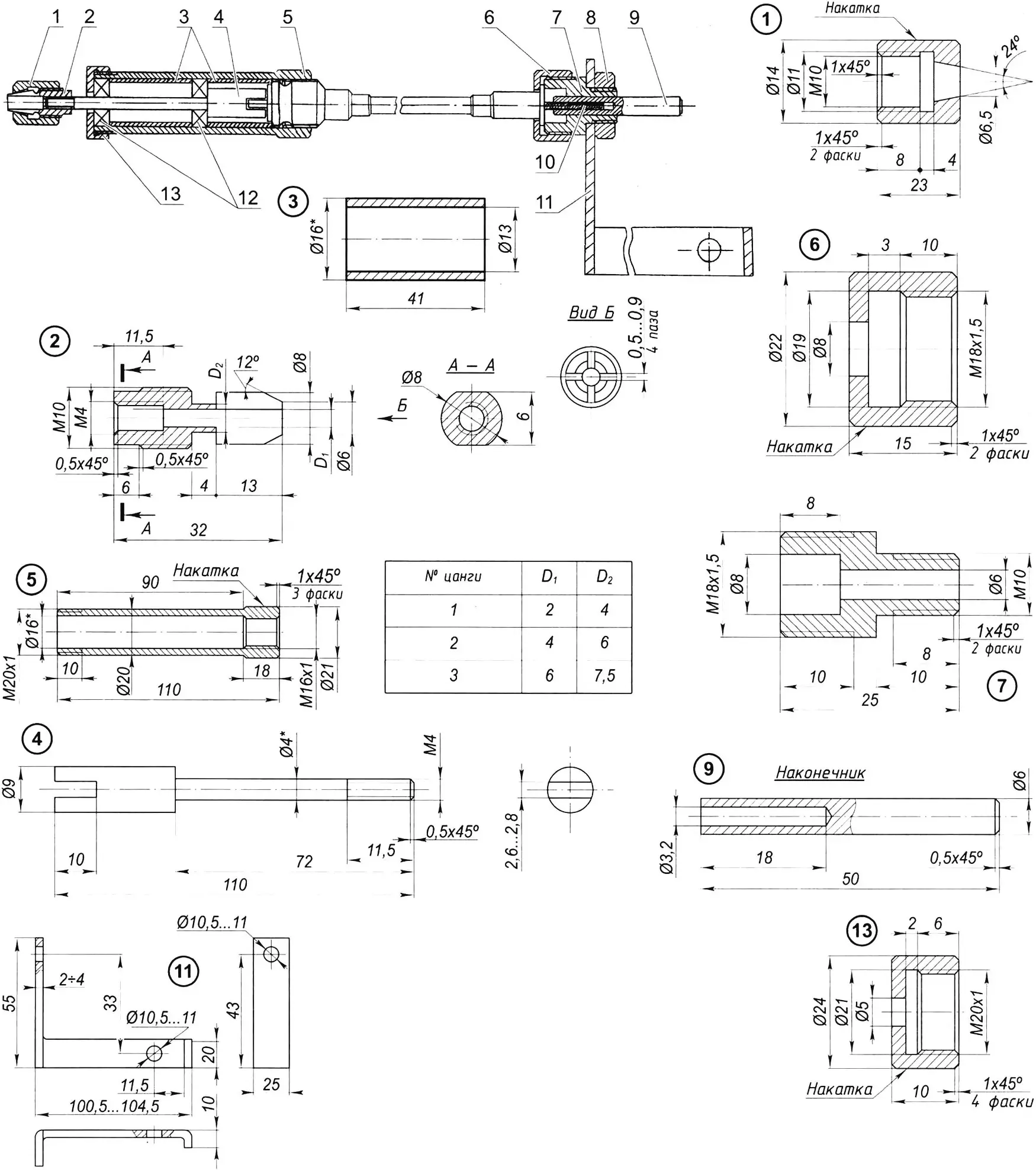
1 — наконечник вала; 2,4 — наконечники оболонки; 3 — гнучка оболонка; 5 — накидна гайка; 6 — гнучкий вал
Насамперед вам знадобиться гнучкий привід. Рекомендую використати для цього тросик спідометра — його нескладно придбати в будь-якому магазині запчастин до автомобілів і мотоциклів. Я застосував гнучкий вал спідометра мотоцикла «ІЖ», типу ГВ 119А-01, під який і розраховані всі розміри, показані на рисунку. Ця деталь повністю відповідала експлуатаційним вимогам і, причому, майже не потребувала доробок — потрібно було лише нарізати різьбу М16 на поверхні одного з наконечників оболонки (рис. 1). З таким самим успіхом можна використати тросики спідометрів інших типів.
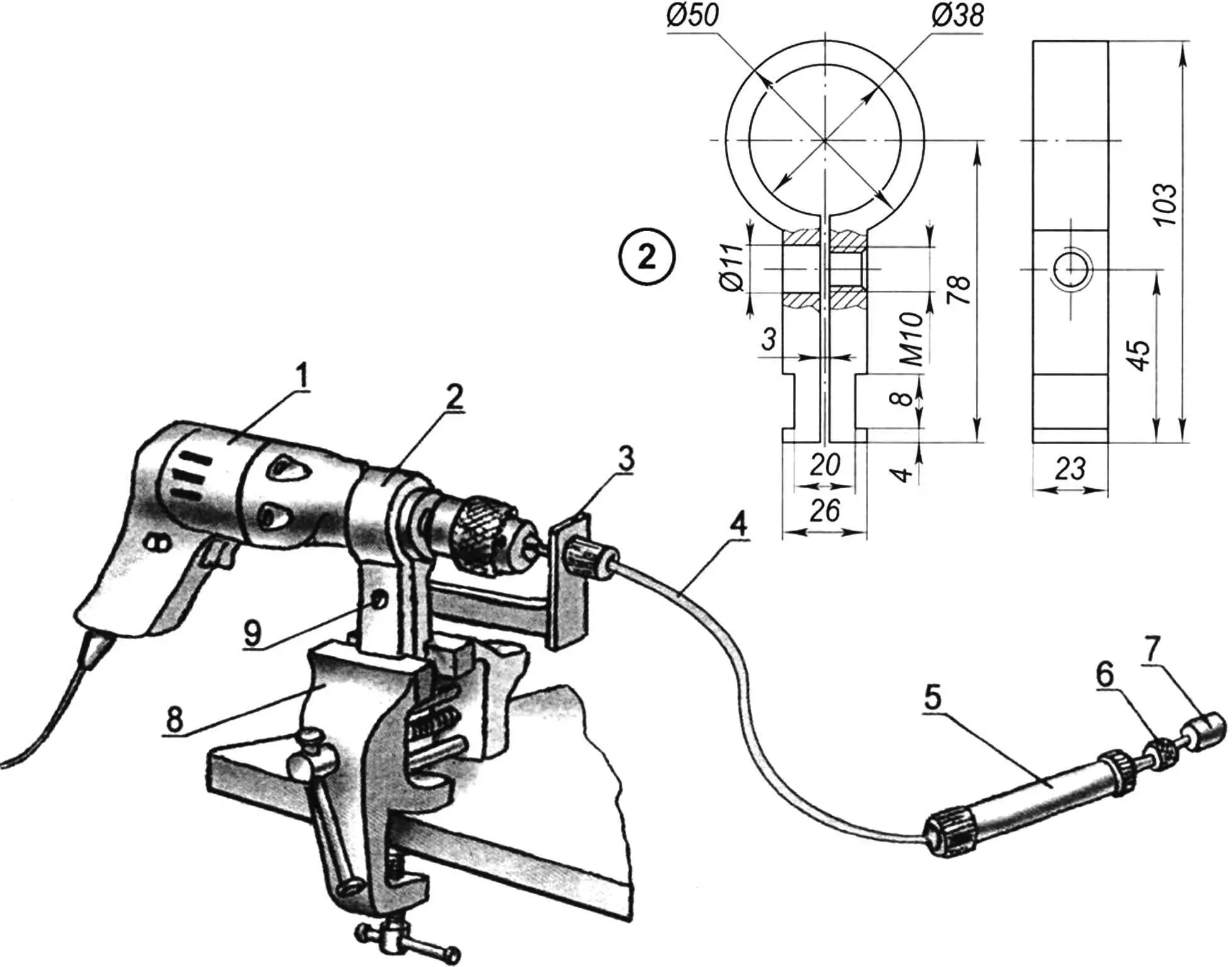
Зовнішній вигляд бормашинки показано на рисунку 2. Електродриль закріплюється в лещатах за допомогою пристосування, яке є в комплекті: кронштейна або спеціального затискача (його розміри наведено для дрилі типу ІЕ-1032; в інших випадках потрібні відповідні зміни). Робоча частина пристрою являє собою короткий жорсткий вал, розташований у рукоятці та приводимий у обертання тросиком, з цанговим затискачем. У цанговому затискачі закріплюється робочий інструмент.

1 — електродриль; 2 — затискач; 3 — додатковий кронштейн; 4 — гнучкий вал; 5 — рукоятка; 6 — цанговий затискач; 7 — робочий інструмент; 8 — лещата; 9 — гвинт М10 для затягування затискача і кріплення кронштейна (гайкою). (Розмір «в» добирається за шириною губок лещат)
Будова основних елементів бормашинки зрозуміла з рисунка 3. Передавання крутного моменту здійснюється через наконечник 9, який затискається в патроні. Кінець гнучкого вала 10, що виступає з оболонки, має квадратний переріз. Його закріплено в наконечнику так: вставлено в отвір, рівний діаметру вала (у нашому випадку 3,2 мм), на глибину 15 — 20 мм і акуратно обтиснуто (розклепано або обжато наконечник на довжині 10 — 15 мм).
Перехідна втулка виконує кілька функцій: служить ковзним підшипником, забезпечує кріплення оболонки вала, а також притискає гнучку приставку до додаткового кронштейна, що забезпечує співвісність вала та осі дрилі. Втулку бажано виготовити з бронзи або латуні.
Робочий вузол складається з жорсткого вала з цанговим затискачем, рукоятки з кришкою, двох розпірних втулок і двох підшипників кочення. Рукоятку і кришку можна виготовити з будь-якого металу — бронзи, сталі або дюралюмінію. Всередині рукоятки з одного краю нарізають відповідну різьбу М16 для закріплення наконечника оболонки гнучкого вала. Положення підшипників фіксується розпірними втулками.

1 — гайка цанги; 2 — змінна цанга; 3 — розпірні втулки; 4 — жорсткий вал; 5 — рукоятка; 6 — накидна гайка; 7 — перехідна втулка; 8 — гайка М10; 9 — наконечник; 10 — гнучкий вал; 11 — додатковий кронштейн; 12 — підшипники; 13 — кришка рукоятки. (* — розміри, що застосовують для підшипників)
Жорсткий вал проточено зі сталі і, по можливості, загартовано. Паз для з’єднання з наконечником гнучкого вала та різьбу під змінні цанги на протилежному кінці зроблено до гартування.
Змінні цанги виготовлено для інструментів із хвостовиками трьох діаметрів: 2,4 і 6 мм. Зовнішні розміри цанг однакові.
Підшипники використано від старого мотора-редуктора. Вони мають зовнішній діаметр 16 мм, внутрішній — 4 мм і товщину обойми — 5 мм. Однак замість них можна застосувати будь-які інші малогабаритні підшипники кочення або навіть ковзання, виточивши їх із латуні чи бронзи.
«Моделіст-конструктор» № 11’2009, В. КАЛІНІН
