Очень часто весна у нас в Сибири выдается затяжной и холодной. А потому рассаду самых распространенных овощных культур: огурцов и помидоров большинство огородников высаживать в открытый грунт даже в конце мая не спешат — ведь, по многолетним наблюдениям, заморозки могут вернуться аж до 10 июня. Однако и тянуть с этим делом нельзя — ведь первые осенние заморозки случаются и в конце августа. В столь короткий теплый промежуток овощи даже не успевают вызреть.
Не многим лучше это положение и на большей части европейской территории страны — недаром даже среднюю ее полосу считают зоной рискованного земледелия. А потому выращивать овощи без теплиц — дело неблагонадежное.
Между тем в сегодняшнее время мастеровому человеку сделать теплицу не только не сложно, но и недорого. К тому же для тех, кто задумал в будущем большую стройку (по семейным масштабам), возведение теплицы станет хорошей практикой.
Прежде чем начать сооружение теплицы, сделал ее эскизный проект в расчете на имеющиеся пиломатериалы. В ходе проектирования определилось потребное их количество и стало ясно, какие и сколько надо еще приобрести.
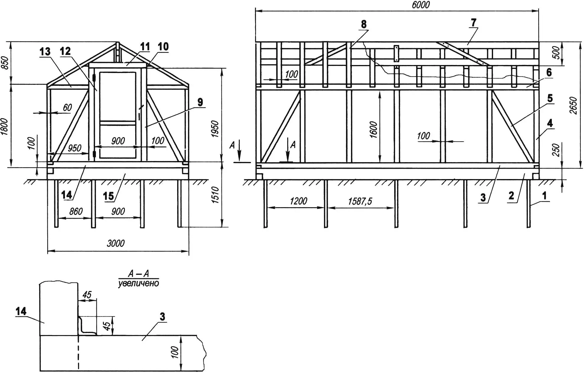
Теплица — стационарная (неразборная), классической формы (если так можно сказать) — в виде домика: в плане — прямоугольной формы с двухскатной крышей и фронтонами.

1 — свая (уголок 45×45, L = 1510, 14 шт.); 2 — продольный ростверк (брус 250×100, L = 6000, 2 шт.); 3 — нижняя продольная обвязка (брус 100×100, L = 6000, 2 шт.); 4 — стойка (брус 100×60, L = 1600, 14 шт.); 5 — подкос (брус 100×60, 8 шт.); 6 — верхняя продольная обвязка (брус 100×60, L = 6000, 2 шт.); 7 — коньковая балка-ферма (2 шт.); 8 — стропильная нога (доска 100×30, 20 шт.); 9 — дверной косяк (брус 100×60, 4 шт.); 10 — ригель (брус 50×50, 2 шт.); 11 — дверная притолока (брус 100×60,); 12 — рамка двери (доска s20, 2 шт.); 13 — верхняя поперечная обвязка (брус 100×60, 4 шт.); 14 — нижняя поперечная обвязка (брус 100×100, 2 шт.); 15 — поперечный ростверк (брус 250×100, 2 шт.)
Фундамент теплицы довольно своеобразный. Сначала по запроектированному периметру стен были уложены мощные брусья (по сечению почти такие же, как шпалы железнодорожного пути, и тоже пропитанные антисептиком). Угловые сопряжения брусьев выполнил «вполдерева», а скрепил их стальными скобами. Потом вдоль брусьев с внутренней стороны по углам и через определенные промежутки были забиты сваи из стального равнополочного уголка №4, 5 (45x45x5 мм) длиной 1510 мм на глубину около 1200 мм.
У верхних концов уголков на прилегающих к брусьям полках просверлил недалеко друг от друга по два отверстия диаметром 6,5 мм и через них прикрепил брусья к сваям 200-мм гвоздями. Получилось так, что брусья повисли на некотором расстоянии от земли, как свайный ростверк. Но это пока. Впоследствии на всю внутреннюю территорию насыпал гумус — плодородный органический почвенный слой толщиной более 200 мм, который попал и под брусья, прикрыв щель.
На фундаментные брусья уложил брусья нижней обвязки сечением 100×100 мм будущего каркаса теплицы, скрепив и те и другие 200-мм гвоздями.
Каркас стен наметил выполнить из бруса сечением 100×60 мм. Расстояние между соседними стойками назначил в 1 м, поскольку предполагал обтянуть стены толстой полиэтиленовой пленкой. При больших промежутках трудно обеспечить такое натяжение пленки, при котором бы она не трепыхалась под напором ветра и не сильно бы обвисала под нагревом солнечными лучами.
Соединение стоек с обвязкой может быть различным: паз — шип, скобами, на коннекерах или самым примитивным способом — гвоздями вкось. Сверху стойки соединяются верхней обвязкой. Крепление элементов подобно тому, что выполнено в нижней обвязке. Во фронтонных стенах обвязка разрезанная, потому что в средней части устанавливаются косяки дверного проема. Поскольку стены теплицы невысокие, то часть дверного проема пришлось завести во фронтоны. К тому же высокая дверь способствует быстрому и полному проветриванию теплицы в жаркие дни — ведь наиболее прогретый воздух скапливается именно под крышей. Здесь же отмечу, что для регулирования влажностно-теплового режима внутри теплицы в ее торцевых стенах обязательно устраиваются закрывающиеся-открывающиеся небольшие вентиляционные отверстия наподобие форточек.
Поскольку стены имеют форму прямоугольника (как известно из геометрии — фигуры нежесткой), то хотя бы между угловыми и соседними стойками, как в боковых, так и фронтонных стенках, надо установить укосины.

1 — нижний пояс (доска s25, L = 6000); 2 — верхний пояс (доска s25, L = 6000); 3 — стойка (доска s25, L450, 3 шт.);
4 — подкос (доска s25, L1250, 2 шт.)
На этом прерву описание конструкции спроектированной теплицы и вернусь к тому моменту ее строительства, когда фундамент, а точнее — свайный ростверк был готов и на него были уже уложены брусья нижней обвязки каркаса стен.
В это время, проходя однажды по оживленной улице, увидел, как в одной из квартир многоэтажного дома меняют оконные рамы на стеклопакеты. Тут же осенила мысль: вот бы такие рамы использовать на сооружении теплицы. Поинтересовался у хозяина, как он собирается их использовать. Услышал ответ: «Если поможешь вывезти на свалку — заплачу». Осмотрев окна, я понял, что на свалку им еще рано — дерево без гнили и сухое — для теплицы лучшего и не надо. Тут же договорился о транспорте и перевез рамы к себе домой.
Дома обмерил окна и прикинул, как распределить их по стенам. Не все рамы были одинаковы, а главное — их размеры не были кратными длине и ширине построенного фундамента. В конце концов эта проблема решилась довольно просто: на длинных (боковых) стенах установил две стойки-вставки, а на коротких (фронтонных) стенах компенсировал разницу в размерах за счет ширины дверей — они тоже самодельные, и их сделал немного шире, чем было необходимо.
В нижней обвязке, вообще-то говоря, необходимость отпала, но решил ее не разбирать — уж очень крепко прибил ее брусья к фундаментным. Верхнюю обвязку оставил как в эскизном проекте — ведь она служит еще и опорой стропил крыши.
Каркас крыши сделал, как было сказано ранее, такой же, какой задумал в первоначальном варианте, поскольку старых рам хватило только на стены.
Во-первых, коньковую балку выполнил из досок-«двадцатьпяток» шириной 150 мм в виде плоской фермы. Нижний пояс фермы уложил на дверные притолоки, а к верхнему прикрепил верхние концы стропильных ног. Нижние концы стропил врезал в верхние обвязки боковых стен и закрепил гвоздями. После этого каждую пару стропильных ног скрепил ригелями из отрезков бруса сечением 50×50 мм, пропустив их под нижним поясом коньковой фермы.

Стропила были запроектированы над каждой стойкой и еще между ними (см. чертеж), чтобы пленка кровли сильно не провисала. В натуре же установил их пореже (см. фото), что тоже оказалось приемлемым, так как в качестве кровли использовал армированную полиэтиленовую пленку. Прижимал ее к стропилам и верхней обвязке тонкими деревянными рейками, а рейки прибивал мелкими гвоздями. Такой же пленкой обтянул рамки дверей — они довольно высокие и потому с остеклением были бы тяжеловаты. Открывать же двери приходится довольно часто, а стеклянные при этом — небезопасны.
Теперь, построив теплицу, я имею возможность высаживать рассаду овощей чуть ли не на месяц раньше тех огородников, кто теплиц не имеет, не опасаясь ни поздних весенних, ни ранних осенних заморозков.
«Моделист-конструктор» № 1’2008, А. МАТВЕЙЧУК, г. Заводоуковск, Тюменская обл.


