Сеялка многорядная «Классическая». Название у этой сеялки емкое, а на самом деле она миниатюрна: высотой всего чуть более 300 мм и весом около 2 кг. Семена с ее помощью можно высевать сразу на несколько рядков — ширина захвата 240 мм. Но главное преимущество в возможности точно дозировать семена, получать одинаковые расстояния между всходами и равную ширину междурядий. Причем эти размеры можно менять, регулируя высев так, чтобы было удобнее затем обрабатывать всходы.
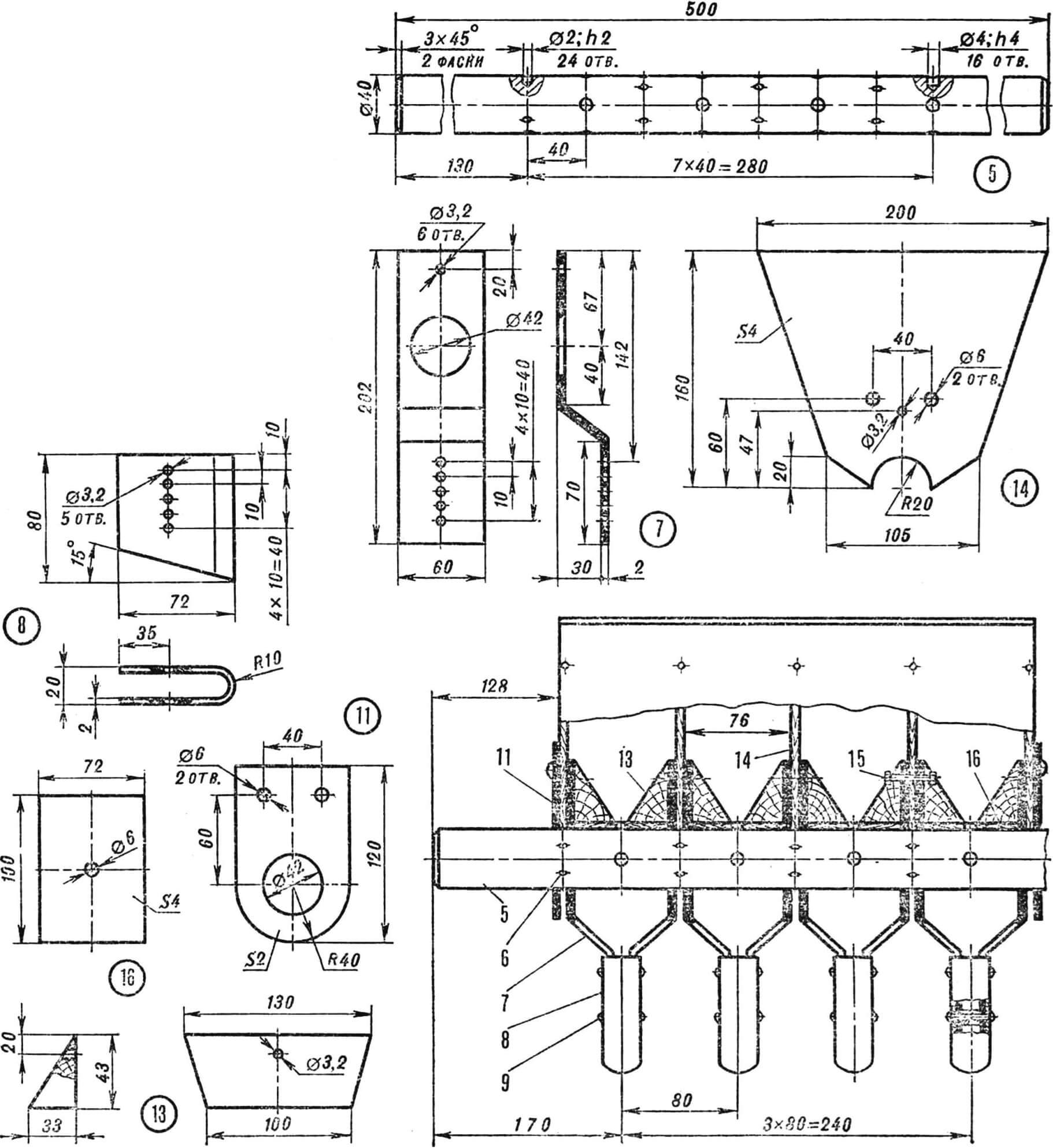
Центральная деталь сеялки — высевающий вал. В нем высверлены ячейки разных диаметров и глубины в зависимости от размеров семян. Вал длиной 500 и Ø 40 мм может быть металлическим или даже деревянным. Ячейки сделаны в восемь рядов, по участвовать в посеве могут не все: ненужные для данного вида культур закрываются накладками и перегородками семенного ящика. Последний лучше собирать из фанеры, но пригодны и тонкие металлические листы. Внутри ставятся перегородки, образующие изолированные секции, сверху ящик закрывается двумя створчатыми крышками.


1 — ручка-водило, 2 — крышка семенного ящика (фанера, 2 мм), 3 — семенной ящик, 4 — колесо Ø 300 мм, 5 — высевающий вал (дерево, дюралюминий Ø 40 мм), 6 — ячейка для семян, 7 — кронштейн (металлический, 2 мм), 8 — сошник (металлический, 2 мм), 9 — крепежный болт М3, 10 — стопорящий винт колеса М4, 11 — шайба, 12 — загорточ, 13 — накладка (дерево), 14 — перегородка (фанера, 2—4 мм), 15 — соединительный болт М3, 16 — дно секции (фанера, 4 мм).
В дне каждой секции сверлится отверстие, совпадающее с соответствующим рядом ячеек па валу. Вал является одновременно и осью колес, жестко закрепленных на нем с помощью винтов, поэтому при движении сеялки он вращается вместе с ними.
Заглубляющими элементами и направляющими для семян служат сошники, укрепленные болтами на кронштейнах. Устанавливая их выше или ниже, можно менять глубину высева семян — от 5 до 40 мм. Заделка их в почву — традиционным способом, с помощью загорточи (прицепленной к сеялке металлической цепи с кольцом, волочащейся по земле). Изменить же ширину междурядий, например увеличить их, достаточно просто: насыпайте семена не во все секции. Для увеличения расстояния между всходами поставьте заглушки на ячейки вала.
Анатолий ВОЛКОВ, ученик средней школы № 16, г. Актюбинск, Казахстан
ОДНОРЯДКА: НОВЫЙ ВАРИАНТ

Раздумывая над конструкцией ручной мини-сеялки, мы обратили внимание, что в большинстве уже существующих подобных вариантов в качестве водила ставится труба Ø 15—20 мм. Она, конечно, полая. Вот этот-то ничем не занятый, свободный объем нам и захотелось прежде всего, как говорится, пристроить к делу. Мы решили использовать его в качестве семенного ящика. Семена засыпаются в трубу непосредственно с верхнего ее конца — со стороны ручки.
Теперь посмотрите, что у нас получилось. Основа сеялки — труба-бункер с приваренным в нижней ее части кожухом. Последний выполняет роль рамы: к нему на двух сквозных болтах крепятся проушины оси-вала колес. На тех же болтах находятся сошники. Заглубление их можно регулировать, для чего на боковинах кожуха имеются соответствующие отверстия, да и сами они сделаны с вертикальными пазами, в которых при перестановке может перемещаться вал.
Эти части металлические — из стальных или дюралюминиевых полос толщиной 2—3 мм, а вал из дюралюминиевой круглой заготовки.

1 — болт крепления колеса на валу, 2 — ступица, 3 — ячейка вала, 4 — проушина, 5 — сквозной болт, 6 — кожух, 7 — щека сошника, 8 — водило-бункер, 9 — сошник, 10 — вал сеялки, 11 — грунтозацеп колеса.
Семена овощей, которыми обычно засевают наши теплицы и огороды, разных размеров: поэтому на высевающем валу высверлено три ряда ячеек: 18 крупных, 22 средних и 30 мелких. Первые — для укропа, шпината, вторые — для редиса, лука-чернушки, моркови, салата, наконец, третьи — под капусту, репу.
Задействовать тот или иной ряд можно, сдвинув вал влево или вправо так, чтобы подвести донное отверстие бункера под нужные ячейки. Сделать это просто: надо только несколько ослабить упорные болты, которыми крепятся колеса на валу, и переместить вал в нужном направлении.
И последнее. Чтобы лучше осуществлялся «контакт» трубы и вала при захвате в ячейки семян, в нижний конец ее вставлена деревянная пробка — дно бункера, по центру которого имеется проходное отверстие.
Александр РЯЗАНОВ, ученик Чулковской средней школы, Владимирская обл.


