Виктор Дмитриевич Бережной — коренной валдаец. По основной своей профессии он сварщик высокой квалификации. Однако в районном центре сложно найти высокооплачиваемую работу. Приходилось быть и швецом, и жнецом. Неизменным оставалось только увлечение Бережного техническим творчеством. Оно-то и выручало его в трудную минуту.
Взять, к примеру, многоцелевой тягач «Малый брат», построенный Бережным несколько лет тому назад. «Малый» потому, что есть еще «Большой брат» — колесный вездеход, за который Виктор Дмитриевич в 2002 году получил приз от телевизионной программы «Сам себе режиссер».
Так вот, тягач нашему самодеятельному конструктору понадобился для неотложных дел на даче. Надо было доставлять на участок строительные материалы, топливо и удобрения, вывозить в город урожай… На дворе же — один «безлошадный» мотоблочный прицеп. Правда, в сарае имелся запас материалов, необходимых любому мастеровому: стальные профили различного сечения, листовой металл, трубы, проволока, крепежные изделия. А также инструменты и сварочное оборудование. Оставалось самое малое — придумать и построить для прицепа тягач. И вскоре он был построен.


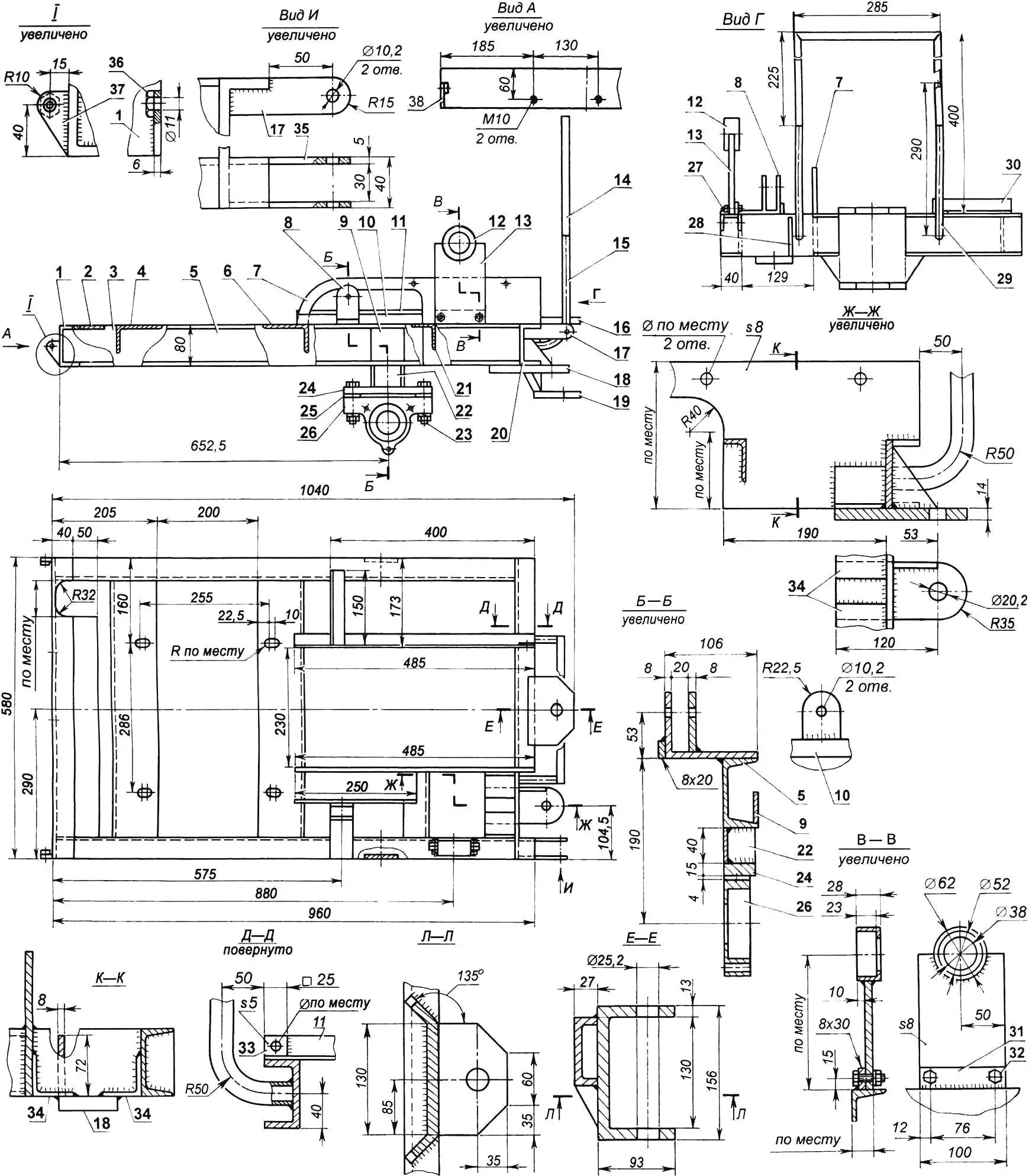
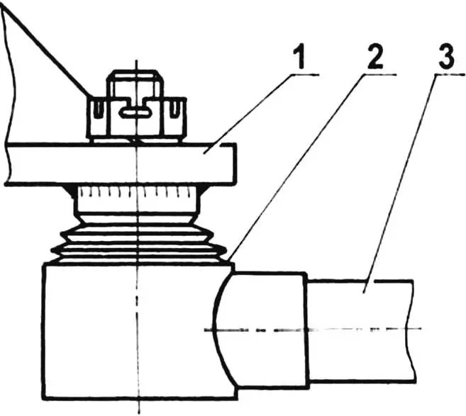
1 — кожух глушителя; 2 — топливный бак емкостью 15 л; 3 — рычаг КПП; 4 — рычаг лебедки; 5 — рулевое колесо с колонкой (от ГАЗ-51); 6 — ручка сцепления; 7 — педаль «газа»; 8 — педаль тормоза тележки; 9 — сиденье водителя; 10 — корпус тележки; 11 — рулевой механизм (от ГАЗ-51); 12 — педаль тормоза тягача; 13 — рулевой шарнир; 14 — дополнительная опора первичного вала КПП; 15 — двухручьевой шкив на первичном валу КПП; 16 — натяжной шкив (сцепление); 17 — рама тягача; 18,26 — подфарники; 19 — двухручьевой шкив на выходном валу двигателя; 20 — топливные фильтры грубой и тонкой очистки (от ГАЗ-51); 21,22 — панели тумблеров ближнего и дальнего света, указателей поворотов; 23 — корпус воздушного фильтра; 24 — двигатель УД2-М1; 25 — кикстартер; 27 — мини-лебедка; 28 — КПП (от ГАЗ-51); 29 — выходной вал КПП; 30 — шкворень сочленения тягача и тележки; 31 — поворотный узел; 32 — инструментальный ящик; 33 — сиденье пассажира
Рука конструктора коснулась и прицепа: дышло снабжено самодельным узлом сцепки; кузов наращен по длине на 220 мм и усилен спереди стальным уголком, крылья подняты, чтобы можно было использовать колеса большего диаметра; пассажирское место ограждено, а водительское оборудовано рулевым механизмом с укороченной колонкой от автомобиля ГАЗ-51.
Справедливости ради следовало бы сразу же отметить одну особенность или, скорее, недостаток системы управления тягачом: при повороте, скажем, направо его руль надо крутить… в противоположном направлении, то есть налево. И наоборот. К этому парадоксальному результату привела попытка конструктора максимально упростить кинематику рулевого привода. В данном случае сошка рулевого механизма (от автомобиля ГАЗ-51) напрямую, всего одной тягой, соединена с левым углом рамы тягача. Конечно, надо было бы сразу ввести промежуточную качалку, еще одну тягу и перенести шаровой шарнир на правый угол рамы. Но отец и сын Бережные (а «Малого брата» водят только они) быстро приспособились к этой его особенности.

1 — шкив привода генератора; 2 — двухручьевой шкив на выходном валу двигателя; 3 — натяжной шкив (сцепление); 4,16 — подшипники 208 ведущего моста; 5 — вал ведущего моста; 6 — подшипник 205 дополнительной опоры первичного вала КПП; 7 — двухручьевой шкив на первичном валу КПП (левый ручей шкива — приводной, правый — тормозной); 8 — заделка верхнего конца тормозного клинового ремня; 9 — натяжной конец тормозного клинового ремня; 10 — шарнирная опора тормозной педали; 11 — тормозная педаль; 12 — КПП (от автомобиля ГАЗ-51); 13 — ведущая звездочка (z = 12, t = 19,05); 14 — ходовая звездочка (z = 34, t = 19,05); 15 — колесо (от электрокара, 2 шт.); 17 — шарнирная опора натяжного шкива; 18 — привод натяжного шкива; 19 — двигатель УД2-М1; 20 — генератор.
Все клиновые ремни имеют сечение типа А
Новой весной Виктор Дмитриевич решил использовать «Малого брата» в огородных делах, как говорят, на полную катушку. Он оборудовал тягач гидравликой, для чего снял кузов и разместил на колесной оси прицепа силовой цилиндр, насос и бачок с гидросмесью (от автобуса ПАЗ), а под рулем — распределитель (от трактора ДТ-20). Навесной плуг крепился прямо к силовому цилиндру.
Однако на ограниченной площади дачного огорода «Малому брату» трудно было развернуться. Тогда конструктор разработал специальную мини-лебедку с приводом от двигателя тягача и простой направляющий механизм, прикрепляемый к переднему бамперу, а плуг снабдил тросом и передним колесом. И стал пахать землю вдвоем с сыном: один из них управляет двигателем и лебедкой, второй — плугом. Дело сразу пошло быстрее и, главное, качество работы стало выше.
КОНСТРУКЦИЯ ТЯГАЧА
Все агрегаты тягача скомпонованы на прямоугольной раме, сваренной из стальных профилей. Впереди, на двух уголковых полках, закреплен четырьмя болтами 2-цилиндровый двигатель УД2-М1 массой 90 кг и мощностью 8 л.с. при 3000 об/мин. Над двигателем, на уголковых стойках, не показанных на рисунке, — топливный бак емкостью 15 л, воздушный фильтр, глушитель, блок фильтров грубой и тонкой очистки (от ГАЗ-51).
За двигателем — место для коробки передач (тоже от ГАЗ-51). Для ее установки предусмотрены два кронштейна: стационарный левый — продольная стальная плита с отверстиями по месту — и съемный правый (хотя на его место можно было бы поставить копию левого. Но так сделано у автора конструкции, поэтому приводим его вариант).

1,20 — передний и задний бамперы (профиль 80x40x8); 2 — полка генератора (полоса 50×5); 3,5 — лонжероны (швеллер № 8); 4,6 — полки двигателя (уголок 90x56x6); 7 — левый кронштейн КПП (лист s8); 8 — проушина натяжного шкива (полоса 45×8); 9 — усиливающая стенка (полоса 65×8, 2 шт.); 10 — усиливающая планка (полоса 20×8); 11 — ложемент правого кронштейна КПП (уголок 28x28x3); 12 — корпус подшипника дополнительной опоры первичного вала КПП; 13 — дополнительная опора (лист s8); 14 — кронштейн панели управления (уголок 28x28x3); 15,29 — опоры кронштейна (труба 27,4×4); 16,19 — проушины поворотного узла (лист s13); 17,35 — петли крепления рычага лебедки (полоса 30×5); 18 — рулевая проушина (лист s14); 21 — перемычка (уголок 50x50x5); 22 — стойка (швеллер № 6,5, 2 шт.); 23 — болт М16 (4 шт.); 24 — опора ведущего моста (полоса 36х15, L175, 2 шт.); 25 — регулирующая шайба (4 шт.); 26 — корпус подшипника ведущего моста (2 шт.); 27,32 — болты М10; 28 — косынка (лист s8); 30 — кронштейн крепления кожуха ходовой цепи (уголок 28x28x3); 31 — кронштейн крепления дополнительной опоры (полоса 30×8, L100); 33 — накладка (лист s5): 34 — кронштейны крепления рулевой проушины (уголок 50x50x5); 36 — гайка М10 (2 шт.); 37,38 — петли навески передних прицепных орудий (лист s6)
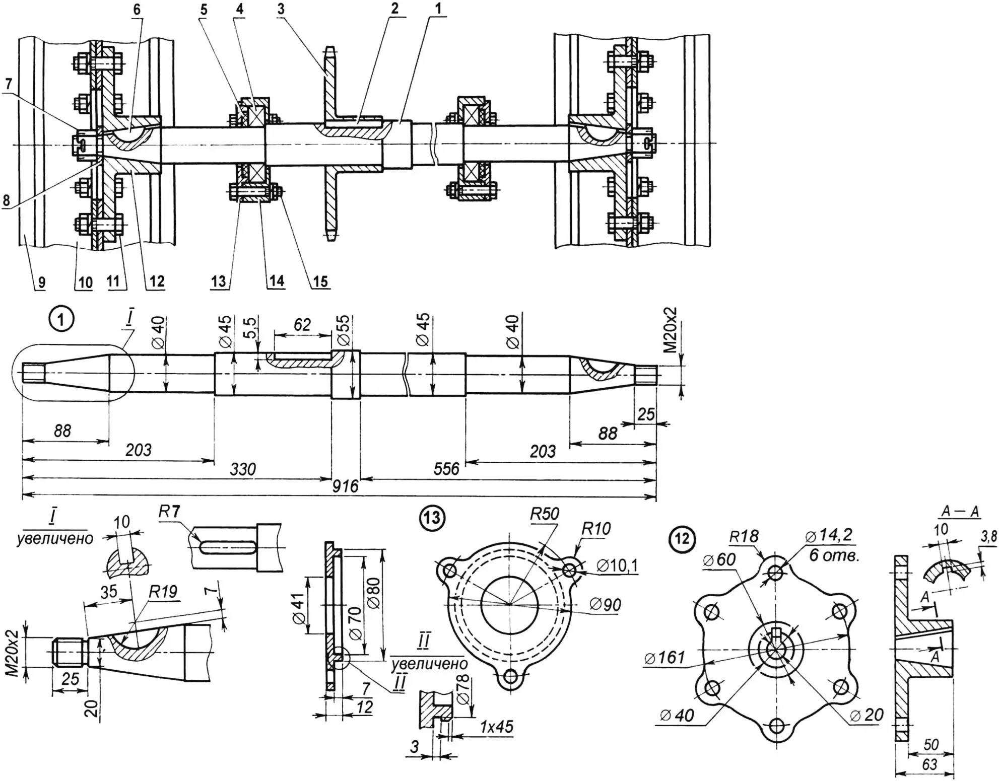
Под рамой — ведущий мост, вращающийся в двух подшипниках 208, корпуса для которых были подобраны из имеющихся у Бережного запчастей, а крышки выточены дополнительно.
Усилие от двигателя к колесам передается двумя передачами: от хвостовика коленвала к КПП клиноременной (с ремнем сечением типа А), а от коробки к колесам — цепной (с шагом t = 19,05).
Почему использована клиноременная передача? Потому что Бережной на всех своих самодельных транспортных средствах предпочитает в качестве механизма сцепления использовать натяжной шкив. Он считает, что такое сцепление надежнее и ремонтопригоднее любого другого. По крайней мере, личный опыт убеждал его в этом не раз. Натяжной шкив диаметром 120 мм на тягаче находится на конце поворотного рычага и приводится в действие посредством тросика в оболочке, конец которого закреплен на ручке сцепления под рулевым колесом.

1 — ходовой вал; 2 — призматическая шпонка 14x9x62; 3 — ходовая звездочка (z = 32, t = 19,05); 4 — подшипник 208 (2 шт.); 5 — сальник (2 шт.); 6 — сегментная шпонка 10×15 (2 шт.); 7 — прорезная гайка М20х2 (2 шт.); 8 — распорная шайба (2 шт.); 9 — пневматик колеса (от электрокара, 2 шт.); 10 — разборный диск колеса (2 шт.); 11 — болт М14 (2×6 шт.); 12 — ступица колеса (2 шт.); 13 — крышка корпуса подшипника (2 шт.); 14 — корпус подшипника (2 шт.); 15 — болт М10 (2×3 шт.).
Болты, соединяющие половинки дисков, не показаны
На выходной хвостовик коленчатого вала надет двухручьевой шкив. Первый ручей предназначен для ходового ремня, второй — для генераторного. Сам генератор установлен перед двигателем на специальной полке из стальной полосы, приваренной к переднему бамперу (отверстия в полке для болтов крепления генератора на рисунке рамы не показаны, но показан вырез в правом переднем углу рамы — для кожуха вентилятора двигателя).
Кроме того, еще один клиновой ремень применен в тормозном механизме тягача. Как правило, данный механизм используется на малых скоростях движения и в качестве дополнения к тормозной системе прицепа, считающейся основной.

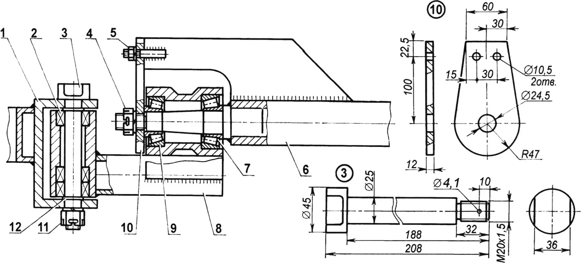
1 — проушина рамы тягача; 2 — роликовый радиальный игольчатый подшипник 4074105 (3 шт.); 3 — шкворень сочленения тягача и тележки; 4 — гайка М24х1,5; 5 — гайка М10 (2 шт.); 6 — узел сцепки; 7 — роликовый конический подшипник 7607; 8 — промежуточное шарнирное звено; 9 — роликовый конический подшипник 7606Н;
10 — кронштейн цапфы (сталь, лист s12); 11 — гайка М20х1,5; 12 — дистанционная шайба (s5, 2 шт.)
Для этого первичный вал коробки передач удлинен и на него насажен двухручьевой шкив диаметром 260 мм от какой-то сельскохозяйственной машины. Чтобы вал не перегружался изгибающими усилиями, его конец укреплен дополнительной опорой с подшипником 205.
На левый ручей этого шкива надет длинный приводной ремень, на правый — короткий тормозной. Последний разрезан, и его верхний конец закреплен на ближайшей опоре кронштейна панели управления, а нижний соединен с педалью на той же опоре. Достаточно выключить сцепление, то есть ослабить натяжение приводного ремня, и нажать на педаль, как тормозной «схватит» шкив и существенно замедлит бег «Малого брата».

1 — обойма игольчатых подшипников; 2 — водило (труба 60×8); 3,5 — накладки (сталь, лист s5); 4 — обойма роликовых подшипников
На выходном валу КПП имеется маленькая звездочка, соединенная роликовой цепью с большой ходовой звездочкой на валу ведущего моста. Натягивается цепь подбором толщины четырех регулировочных шайб на болтах крепления моста к раме.
Ведущий вал бездифференциальный, монолитный. Вращение от ходовой звездочки передается им сразу на оба колеса. Казалось бы, выигрыш за счет простоты конструкции должен свестись к нулю из-за проблем с поворотами. Однако опыт показал, что таких проблем нет. Даже при езде по асфальту — автор статьи тому свидетель — трудностей с управлением тягачом не было. Очевидно, колея тягача настолько маленькая (всего-то 860 мм!), шины (от электрокара) и ходовой вал мощные, а почва, по которой перемещается «Малый брат», преимущественно рыхлая, что в поворотах колеса легко справляются с перегрузками.

1 — внутренняя часть; 2 — поддон (сталь, лист s1); 3 — внешняя часть; материал — сталь, лист s1; соединение — болтами М6 (8 шт.)
Кстати, толстенные шины, рассчитанные на очень большое давление воздуха (электрокар — это как-никак грузоподъемная машина), позволили Бережному заметно улучшить сцепные качества колес. В каждую свободную минуту Виктор Дмитриевич брал в руки острый нож и вырезал по краю в плотном массиве резины углубления. Со временем почти «лысые» шины обрели довольно заметный рисунок протектора.
Не ожидаются трудности и с монтажом колес. Диски у них разъемные, на шести болтах, так что шиномонтажная операция под названием «разбортирование» в данном случае исключается. Нелегко, правда, вручную накачивать камеры до нескольких десятков атмосфер. Но Бережному пока это делать пришлось всего один раз.

1 — цапфа; 2 — дышло тележки; 3, 5 — шпильки М10; 4 — гребень
Если говорить о конкретных узлах конструкции тягача, то наиболее сложный узел, естественно, рама. Для ее изготовления пошли стальные профили самого разного сечения.
На первый взгляд, рама выглядит нагромождением этих самых профилей. Однако каждый из них лег на свое место не случайно, а в результате многократной проверки на работоспособность. Следуя своему принципу разумной достаточности, конструктор иногда шел на очевидное утяжеление какого-нибудь стыка, зато резко упрощая форму сварного соединения. Это давало заметный выигрыш во времени, в расходе сил и средств.

Подольше пришлось ему повозиться с поворотным узлом, при изготовлении которого оказалось необходимым прибегнуть к токарным работам. Поскольку сочленение тягача с прицепом должно было отвечать принципу «ломающейся» рамы с двумя степенями свободы, Виктор Дмитриевич ради экономии времени (весна поджимала) остановился на первом же варианте — с промежуточным шарнирным звеном с двумя взаимно перпендикулярными осями вращения. Благо все необходимые детали, в том числе игольчатые и конические подшипники, под рукой тогда имелись.
Однако сегодня конструктор посоветовал бы своим возможным последователям, которые согласятся с данным вариантом поворотного узла, сделать его еще более простым. А для этого вместо строенных игольчатых подшипников 4074104 и самодельного шкворня использовать штатные сдвоенные игольчатые подшипники 46490518 и палец из коробки передач ГАЗ-51, а вместо конических подшипников 7606Н и 7607 и самодельной цапфы — штатные конические подшипники и цапфу из ступицы переднего колеса того же автомобиля. Конечно, если они будут в наличии.

1 — рулевая проушина на раме тягача; 2 — шаровой шарнир; 3 — рулевая тяга
И последнее. На фотографии в заставке хорошо видно, что почти все агрегаты силовой установки «Малого брата» скрыты капотом, а передний бампер из грубого швеллера — более декоративным хромированным бампером от «копейки» ВАЗ-2101 (укороченным и без «клыков»).
Капот сварен из раскроя стального листа толщиной 1 мм и оснащен металлическими мелкоячеистыми сетками для доступа воздуха к картеру двигателя (спереди) и вентилятору охлаждения (справа), а также петлями для пружинных держателей, расположенных на крыльях, и фарами для передвижения в темное время суток. Держатели и обе фары — от автомобиля ГАЗ-51.
Технические данные тягача с прицепом:
Длина, мм … 3560
Ширина, мм:
тягача … 1040
кузова … 1270
Высота, мм … 1130
Колея тягача, мм … 860
Двигатель … УД2-М1
Мощность двигателя (при 3000 об/мин), л.с. … 8
Расход топлива, л/100 км … 10
Максимальная скорость, км/ч … 60
Транспортная скорость, км/ч … 40
Грузоподъемность, кг … 760
«Моделист-конструктор» № 2’2005, А. ТИМЧЕНКО


