Эту лодку я решил сделать специально для рыбалки в тихих озерных заводях — небольшую и маневренную. И обязательно легкую, чтобы можно было управляться с ней в одиночку. Подходящий материал для нее имелся: уже несколько лет под крышей гаража хранился большой дюралюминиевый лист 2700x1800x2 мм, разрезать на части который просто не поднималась рука. Собственно, он во многом и определил конструкцию судна, его размерения и обводы. За прототип взял лодку-«джонбот», немного напоминающую двухтранцевую китайскую джонку. Они очень остойчивы и имеют значительную грузоподъемность, что мне и было нужно в первую очередь.
Проектировал, исходя из размеров имевшегося листа металла. Высоту бортов назначил 350 мм, а длину переднего транца — 600 мм, что соответствует углу его наклона к зеркалу воды примерно 35°. Прикинул предварительные эскизы и, чтобы не ошибиться при раскрое материала, изготовил масштабный макет будущей лодки из жесткого картона.

1 — передний транец; 2 — заклепки (алюминий Ø3 мм); 3 — борт; 4 — банка гребца (доска лиственных пород s20 мм); 5 — накладка (Ст3, лист s2 мм, 2 шт.); 6 — уключина (Ст3, лист s4 мм, пруток Ø10 мм, 2 шт.); 7 — кница (дюралюминий, лист s1,5 мм, 2 шт.); 8 — задний транец (дюралюминий, лист s5 мм); 9 — пайол (брусок 40×20 мм); 10 — банка пассажира (доска s20 мм); 11 — планширь (доска s15 мм, 2 шт.); 12 — спинка банки (доска s20 мм); 13 — стойка спинки (дюралюминий, труба Ø22 мм, 2 шт.); 14 — кронштейн для установки сиденья (дюралюминий, уголок 40×25 мм, 4 шт.); 15 — палубный настил (дюралюминий, лист s1,5 мм); 16 — бимсы (доска s15 мм); 17 — оцинкованные гвозди
Жесткие борта и днище служат несущими элементами каркаса, так как обычного силового набора из шпангоутов и стрингеров здесь нет. Лишь отчасти их роль выполняют две банки (сиденья) и планширь. Нет у лодки привычного форштевня, да и киля как такового тоже нет. Конструкция практически плоскодонная, а борта у нее впереди не сходятся на форштевне, а переходят в наклонный трапециевидный транец. Некоторые сомнения возникли лишь при выборе поперечных размерений: то ли сделать борта повыше, а ширину поменьше, то ли наоборот. Выбор пал на второй вариант. На тех акваториях, где мне предстояло эксплуатировать это суденышко — спокойные речушки и небольшие озера, сильного течения и больших волн нет, а значит, высокие борта не так уж и необходимы. А вот достаточная ширина — как раз то, что нужно, поскольку на рыбалке иногда приходится вставать в лодке во весь рост.
После изготовления макета нанес разметку на лист металла и начал его кроить в несколько приемов. Принцип «семь раз отмерь, один раз отрежь» в этом деле посчитал неприемлемым и использовал противоположный подход. Отмерив и разметив один раз, начал кроить металл сначала с большими припусками, не прорезая его насквозь. Постепенно подгибая и подгоняя друг к другу сопрягаемые части, понемногу отрезал припуски, прорезая линии разметки. Отмечу, что эту операцию лучше выполнять с помощником.

1 — линия борта; 2 — линия скулы; 3 — линия киля; 4 — линия транца
Соединение швов-стыков (припусков с листом) выполнял алюминиевыми заклепками с полукруглой головкой и диаметром стержня 3 мм. Соответствующие отверстия под них сверлил одновременно в обеих соединяемых частях и деталях на корме по месту в шахматном порядке (в два ряда). Перед клепкой стыкуемые поверхности промазывал густотертой краской.
Транец сделал тоже из дюралюминия, но из другого листа (толщиной 5 мм), дабы сэкономить основной материал. Клепочных работ при этом немного прибавилось, зато длина лодки оказалась максимально возможной, и теперь в нее могут смело усаживаться два человека с необходимым снаряжением.
Первоначально судно задумывалось очень простой формы: корпус в виде прямоугольного параллелепипеда с отвесными бортами и носом впереди в виде призмы. Однако уже в ходе сборки, еще до установки транца, обнаружилось, что борта у лодки «разваливаются» (отходят в стороны) под собственной тяжестью, а днище на корме при поднятии корпуса прогибается. При этом нос у лодки приподнимался, а верх бортов в носовой части закруглялся. Пришлось заняться «проектированием по месту». Впрочем, все это меня не огорчило, так как перемены придавали лодке даже более привлекательный вид. В результате транец стал не прямоугольным, а фигурным. Лодка приобрела слегка разваленные борта, приподнятый нос и небольшую килеватость. Последняя, кстати, улучшила ее устойчивость на курсе.

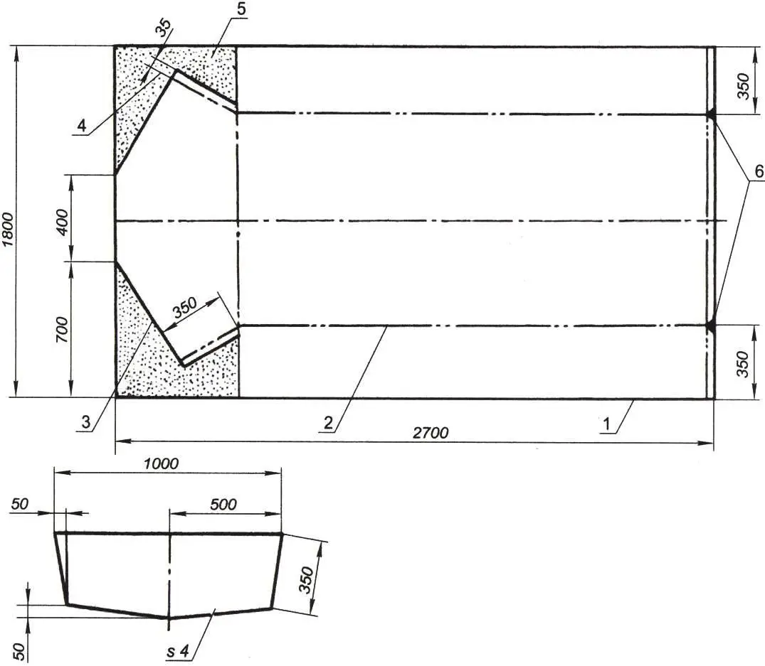
1 — линии контура листа; 2 — линии сгиба; 3 — линии отреза; 4 — вспомогательные линии разметки; 5 — удаляемые части листа (серый цвет); 6 — удаляемые по месту части листа (черный цвет); 7 — задний транец (дюралюминий, лист s4 мм)
Вдоль верхней кромки бортов смонтировал планшири из еловых досок сечением 100×15 мм — они служат и стрингерами и привалочными брусьями. В носу на переднем транце они соединены бимсом -поперечной балкой для опоры палубы. В носовой части планширь из-за большой кривизны сделан составным, а под стыки установлены и прикреплены подложки из такой же доски. На всем протяжении борта к планширю прибиты оцинкованными гвоздями (к сожалению, не нашел подходящих «саморезов»). Еще один бимс смонтирован между планширями у задней кромки палубного настила, выполненного из 1,5-мм дюралюминиевого листа. Сама кромка палубы отогнута, чтобы попавшая на настил вода стекала за борт. На корме с бортами и транцами планшири соединены косынками, выгнутыми из такого же 1,5-мм дюралюминиевого листа. Здесь на уголковых кронштейнах, приклепанных к бортам, установлена банка пассажира. Аналогичным образом, но только в средней части корпуса, установлена банка гребца. При всей простоте оборудования лодки, у нее имеется спинка. Она складная (откидывается вперед) и крепится тыльной стороной заподлицо с поверхностью банки. Поднимается спинка тогда, когда гребец отдыхает или удит рыбу.
Весла самодельные, хотя лопасти взяты от весел лодки «Казанки». Веретена — из дюралюминиевых труб диаметром 22 мм. В нижней части они разрезаны вдоль пополам, концы расплющены. В прорези вставлены лопасти и приклепаны. Уключины — обычные двурогие вилки с приваренными к ним штырями. Штыри вставляются во втулки, приклепанные к бортам под планширями. Чтобы отверстия в планширях не разрабатывались, в этом месте к ним прикреплены стальные накладки. Весла в уключинах удерживаются болтами М5, вставленными в сквозные отверстия, просверленные одновременно в рожках вилок и трубах веретен.

1 — веретено (дюралюминий, труба Ø22 мм); 2 — лопасть (дюралюминий, лист s2 мм); 3 — заклепки (3 шт.)
Все деревянные детали лодки были пропитаны горячей олифой за два раза, а корпус снаружи покрашен краской в «защитный» цвет. Для непотопляемости форпик (ниша под палубным настилом) забит пенопластом.
Подведу итоги. Достоинства лодок с дюралюминиевой обшивкой общеизвестны и обнаруживаются еще на берегу: легкость, прочность, долговечность. И хотя последнее обстоятельство мною поначалу в расчет и не бралось (планировал приобрести хорошую надувную лодку), но все вышло по поговорке: «Нет ничего более постоянного, чем временное». Самоделка служит уже несколько лет, и отказываться от нее пока не собираюсь — уж очень практичная получилось. Для ее перевозки достаточно багажника на крыше легкового автомобиля. На него лодку можно погрузить даже одному. Нет забот с обслуживанием и консервацией для хранения: поставил ее на борт или на задний транец, придвинул к стенке сарая на даче и пусть зимует до следующей навигации под навесом, занимая совсем небольшую площадь. На воде же проявляются и другие положительные качества — хорошая остойчивость, большое водоизмещение, маневренность и легкость хода на веслах.
Ну и о технике безопасности, конечно. Не забывайте, что выходить на воду на таком маломерном судне можно только надев на себя индивидуальное спасательное средство: жилет или нагрудник.
«Моделист-конструктор» № 6’2025, Евгений СЕВОСТЬЯНОВ, п. Изоплит (Тверская обл.)


